EasyManua.ls Logo

ATREA DUPLEX RA5 - 8.2 RD5 Internal Wiring Diagram

ATREA DUPLEX RA5
48 pages
Print Icon
To Next Page IconTo Next Page
To Next Page IconTo Next Page
To Previous Page IconTo Previous Page
To Previous Page IconTo Previous Page
Loading...
43
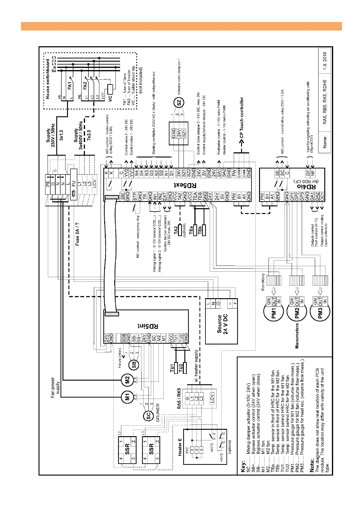
8.2 RD5 wiring diagraminternal wiring

Table of Contents

Related product manuals