EasyManua.ls Logo

Avidsen ORANE-CONNECT - Page 15

Avidsen ORANE-CONNECT
72 pages
Print Icon
To Next Page IconTo Next Page
To Next Page IconTo Next Page
To Previous Page IconTo Previous Page
To Previous Page IconTo Previous Page
Loading...
EN15EN 14
C - INSTALLATION
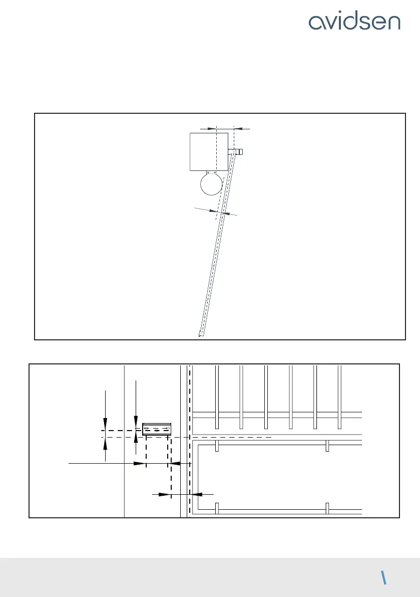
Depending on the maximum opening angle desired for the gate, the post bracket should be placed further
from or nearer to the edge of the post (so that the motor does not prevent the gate from opening). For
optimum motor operation, the distance X must be as small as possible. Also remember that a 25mm safety
distance is required between the open gate and the motor (see “Hazard analysis” chapter). Temporarily
place the motor on the ground in position and search for the correct position to determine distance X.
25 mm
x
Position the bracket on the post (using distance X) and mark the locations of the holes.
37 mm
115
mm
12 mm
x

Table of Contents

Related product manuals