EasyManua.ls Logo

Bitzer CSH65 - Page 47

Bitzer CSH65
68 pages
Print Icon
To Next Page IconTo Next Page
To Next Page IconTo Next Page
To Previous Page IconTo Previous Page
To Previous Page IconTo Previous Page
Loading...
47SH-170-2 RUS
L 1
L 2
L 3
N
P E
1 2 3 4 5 6 7 8 9 1 0 1 1 1 2 1 3 1 4 1 5 1 6 1 7 1 8 1 9 2 0 2 1 2 2
F 1
1
0
Q 1
F 2
K 1
8
K 2
1 5
M 1
1
2
3
M 3
R 3 - 8
T 1
T 2
7
8
9
F 3
4 A
S 1
0 1
S 2
N
s c h w a r z / b l a c k
b r a u n / b r o w n
b l a u / b l u e
L 1
L 2
L 3
1
2
1 1
1 2
1 4
I N T 6 9 V S Y - I I
N
L
R 2
R 1
3
4
5
1 1
1 2
K 1
8
F 4
F 5
F 6
B 2
K 1
8
K 2
1 5
K 3 T
9
P >
P <
H 1
K 1
K 3 T
Y 2
Y 3
K 2
0 . 5 s
K 2 T
K 1
8
K 2 T
1 7
3 0 0 s
2 / 2 / 2 / 7 / 1 2
1 5
5 / 1 7 / 4 2
1 5 4 / 4 / 4 / 1 2
1 2
9
D 1
K 1
8
Y 5
8
K 4
4 2
F 1 3
8
F 1 4
8
F 1 3
2
F 1 4
4
K 1
8
Y 1
C R 1
C R 3C R 2
Y 4
C R 4
K 5 T
1 3
1 0 s / 1 0 s
À
K 2
1 5
K 2
1 5
U
K 5 T
1 4
K 1
8
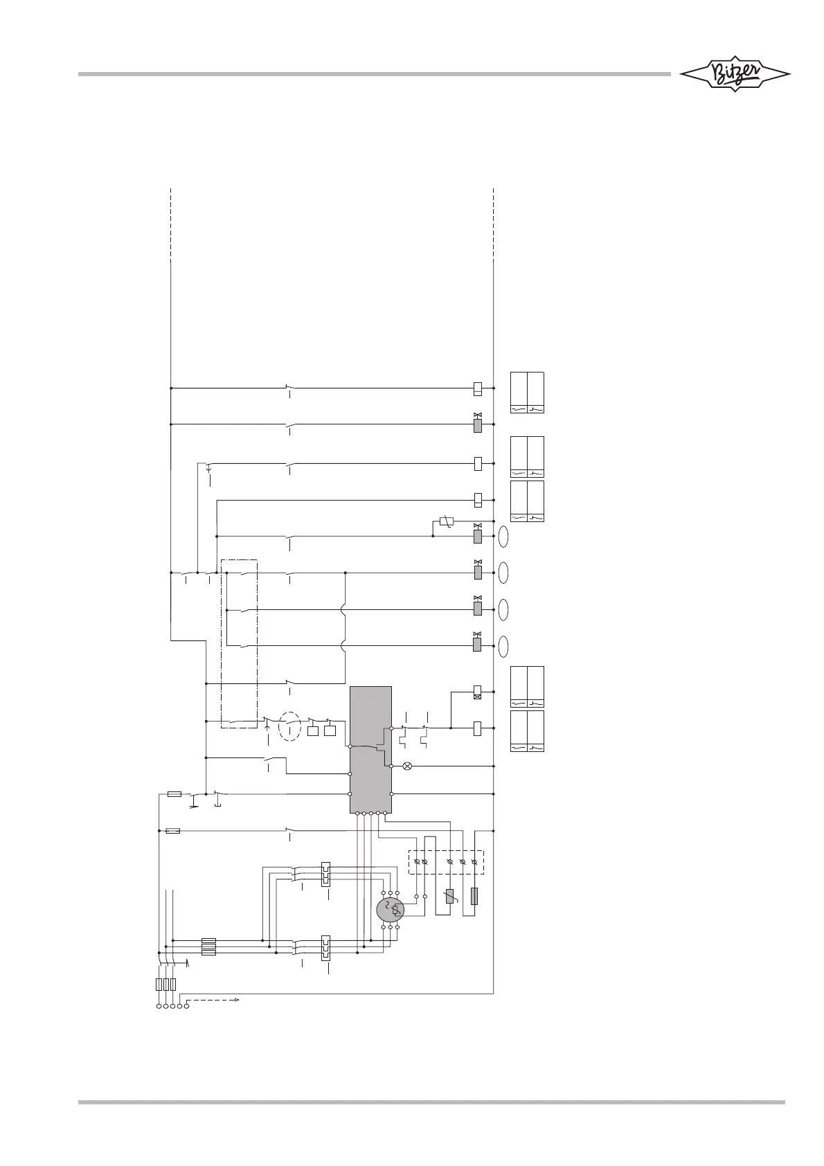
Teilwicklungs-Anlauf
4-stufige Leistungsregelung
Part winding start
4-step capacity control
Управляется встроенным реле пульсации
«включен»- 10 сек., «выключен»-10 сек.
Смотри также главу 2.6 и 2.7.
Схемы подключения дополнительного
оборудования: системы экономайзера,
жидкостного впрыска, а также датчика
уровня масла показаны на странице 50.
Условные обозначения указаны на странице 52.
Adjustable fixed pulse relais 10 s / 10 s,
see also chapter 2.6 and 2.7
Options for ECO operation, liquid injection
and oil level monitoring see page 50
For legend refer to page 52
Einstellbares Zeittakt-Relais 10 s / 10 s,
siehe auch Kapitel 2.6 und 2.7
Optionen für ECO-Betrieb, Kältemittel-
Einspritzung und Ölniveau-Überwachung
siehe Seite 50
Legende siehe Seite 52
Пуск мотора с разделёнными обмотками
4-х ступенчатое регулирование производительности

Table of Contents

Related product manuals