EasyManua.ls Logo

Bluetti EP600 - Page 31

Bluetti EP600
80 pages
Print Icon
To Next Page IconTo Next Page
To Next Page IconTo Next Page
To Previous Page IconTo Previous Page
To Previous Page IconTo Previous Page
Loading...
EP600
储能系统用户手册
30
5-1 Picture 5-1
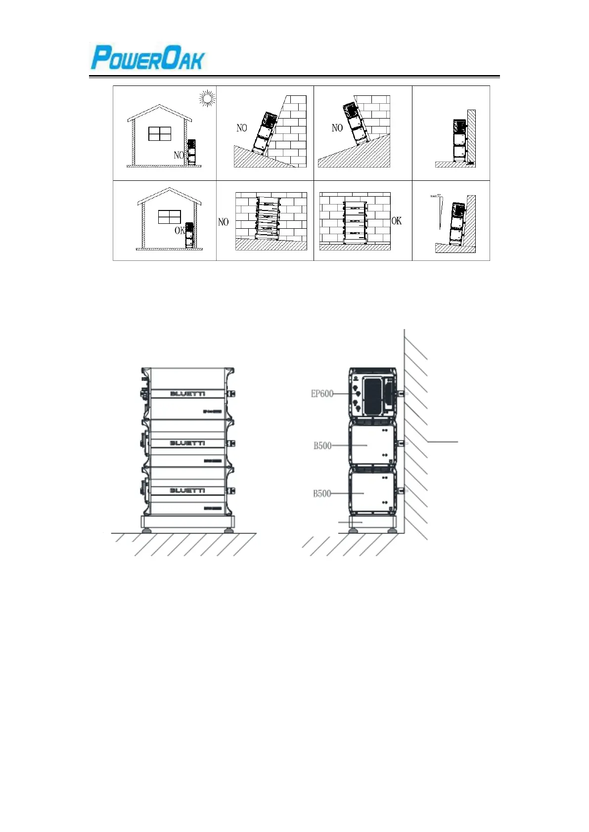
5.4.4 Space requirements for single system installation
The following diagram shows the EP600 system installed in a single group.
Figure 5-2 GroundBase, Wall
5.4.5 Space requirements for multiple systems are installed side by side
When multiple systems are installed side by side, keep at least 1000mm distance between them to
reduce the impact of heat dissipation.
Wall
Base
Ground

Other manuals for Bluetti EP600

Related product manuals