EasyManua.ls Logo

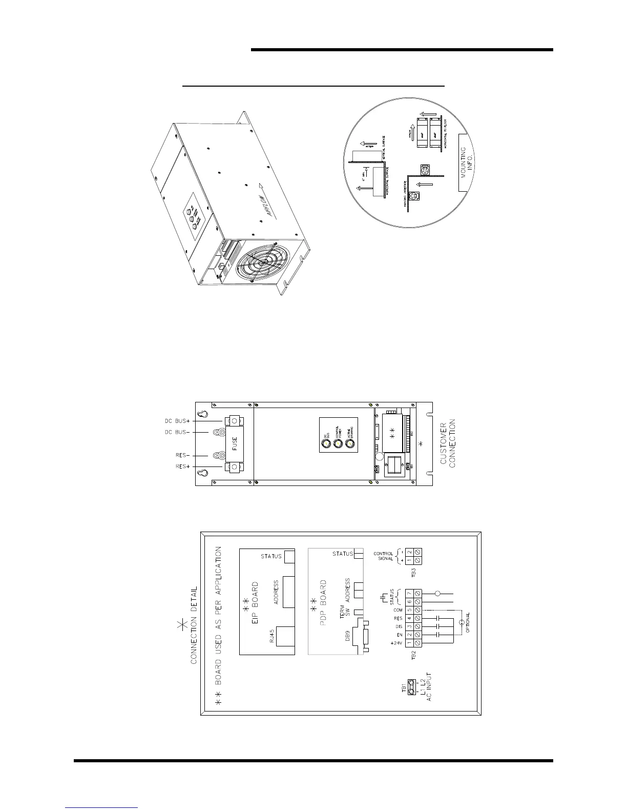
bonitron M3452 - Figure 3-1: Customer Connections in K6 Chassis

bonitron M3452
68 pages
Print Icon
To Next Page IconTo Next Page
To Next Page IconTo Next Page
To Previous Page IconTo Previous Page
To Previous Page IconTo Previous Page
Loading...
M3452 vR8 EIP/PDP
18
Figure 3-1: Customer Connections in K6 Chassis

Table of Contents

Other manuals for bonitron M3452

Related product manuals