EasyManua.ls Logo

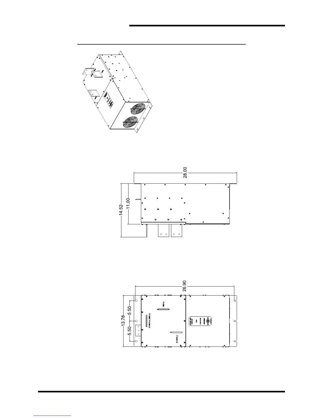
bonitron M3452 - Figure 6-5: M3452 M14 Chassis Dimensional Outline Drawing

bonitron M3452
68 pages
Print Icon
To Next Page IconTo Next Page
To Next Page IconTo Next Page
To Previous Page IconTo Previous Page
To Previous Page IconTo Previous Page
Loading...
M3452 vR8 EIP/PDP
58
Figure 6-5: M3452 M14 Chassis Dimensional Outline Drawing

Table of Contents

Other manuals for bonitron M3452

Related product manuals