EasyManua.ls Logo

Brooks 9600 - Page 58

Brooks 9600
70 pages
Print Icon
To Next Page IconTo Next Page
To Next Page IconTo Next Page
To Previous Page IconTo Previous Page
To Previous Page IconTo Previous Page
Loading...
B-2 ©2013 Brooks Automation Inc. Pub. No. 8040444, Rev. AA, 01/14/2013 ECO No. 63723
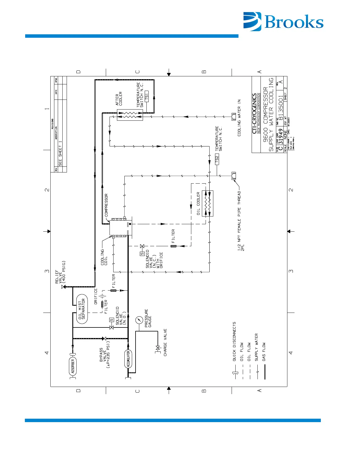
F
i
g
u
r
e
B
-
1
:
9
6
0
0
C
o
m
p
r
e
s
s
o
r
F
l
o
w

Table of Contents