EasyManua.ls Logo

Buderus Logamax plus - Page 19

Buderus Logamax plus
92 pages
Print Icon
To Next Page IconTo Next Page
To Next Page IconTo Next Page
To Previous Page IconTo Previous Page
To Previous Page IconTo Previous Page
Loading...
Installation 6
Logamax plus GB162-80 kW/100 kW - Subject to modifications resulting from technical improvements! 19
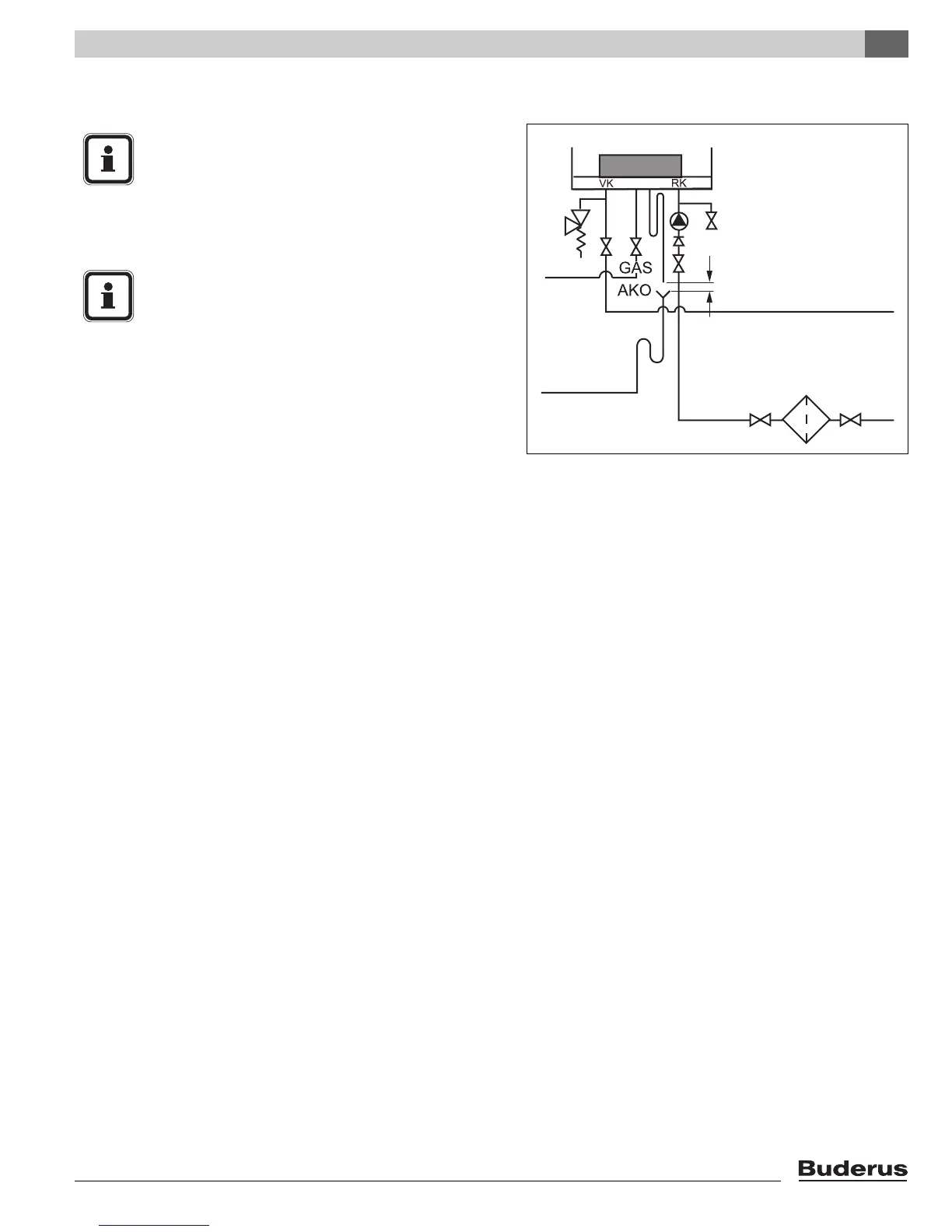
6.3.4 Installing the heating supply and return pipe
z Connect the supply pipe with a flat rubber seal installed
to the Supply connection (fig. 12, pos. 1) making sure it
is not under stress. Use a supply pipe with a minimum
diameter of 1½" (38 mm).
z Connect the return pipe with a flat rubber seal installed to
the Return connection (fig. 12, pos. 2) making sure it is
not under stress. Use a return pipe with a minimum
diameter of 1½" (38 mm).
6.3.5 Installing the pump
Always use the supplied Buderus pump group and the low
loss header when installing a single boiler so correct flows
are guaranteed. It is not necessary to install a low loss
header for cascade systems.
z Install the pump (fig. 12, pos. 8) in the return circuit
(fig. 12, pos. 2).
Fig. 12 Connecting the boiler supply and return
pos. 1: Supply
pos. 2: Return
pos. 3: Isolating valves
pos. 4: Drain cock
pos. 5: Gas valve
pos. 6: Pressure relief valve
pos. 7: Condensate trap
pos. 8: Pump
pos. 9: Non-return valve
pos. 10: Dirt filter (for example scale cartridge or y-strainer)
1
2
35
6
3
48
9
7
10
3
3
>1” (2.54 cm)
NOTICE
When using plastic pipes, observe the supplier’s
instructions - especially those referring to
recommended jointing techniques and the
notes relating to the heating system water on
page 8.
NOTICE
To prevent contamination in the heating system
we recommend you integrate a dirt filter (fig. 12,
pos. 10) in the return pipe, near the boiler. In an
old system it is a requirement to install a dirt
filter. Also install shutoff valves to enable filter
cleaning immediately upstream and down-
stream of the dirt filter (scale cartridge or
y-strainer).

Table of Contents

Other manuals for Buderus Logamax plus

Related product manuals