EasyManua.ls Logo

Buell 2007 FIREBOLT - Page 40

Buell 2007 FIREBOLT
631 pages
Print Icon
To Next Page IconTo Next Page
To Next Page IconTo Next Page
To Previous Page IconTo Previous Page
To Previous Page IconTo Previous Page
Loading...
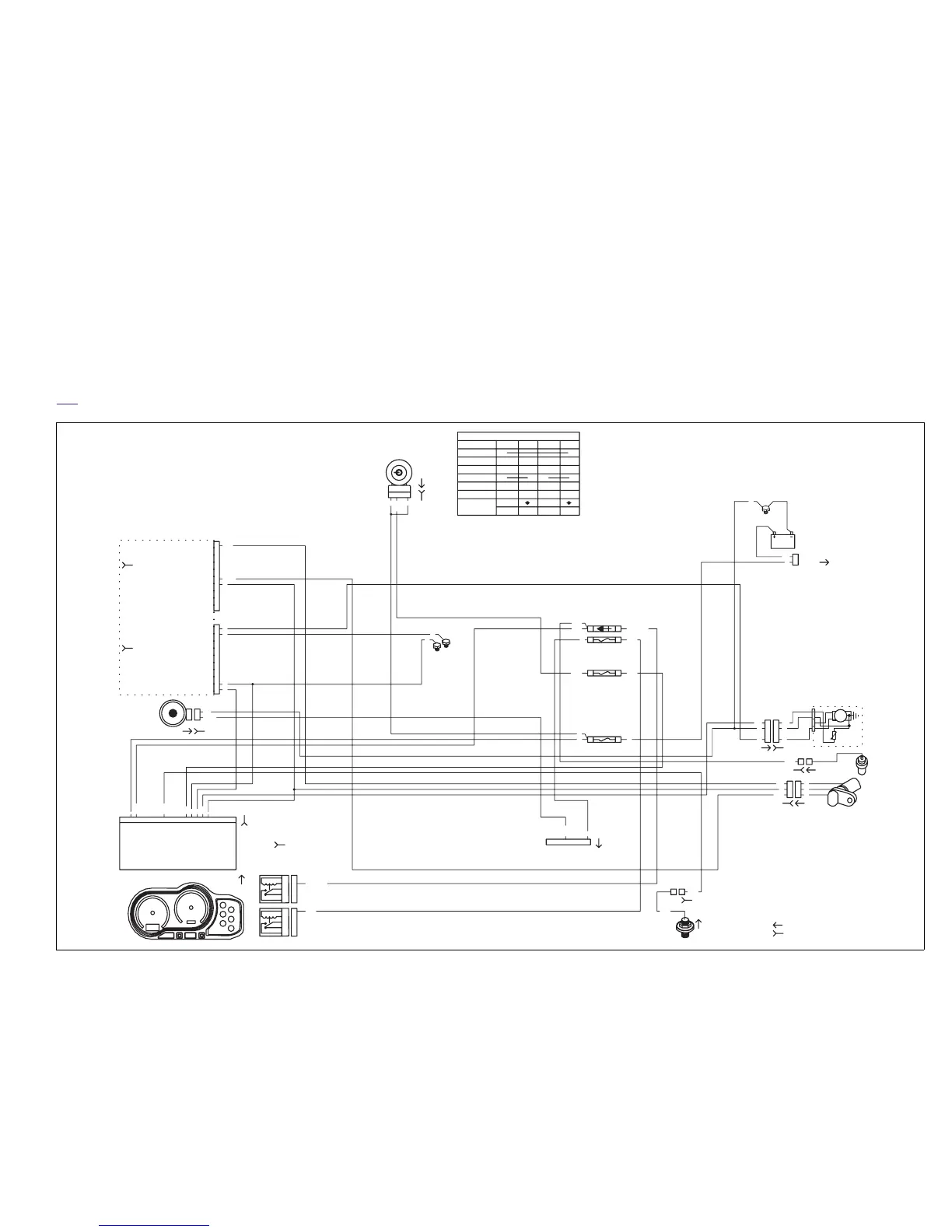
2007 Buell Firebolt: Electrical B-23
HOME
2007 XB Firebolt Horn & Instruments Circuit
MTR
LOW
FUEL
SENSOR
1
11
HORN
LH CONTROLS
[120A]
[120B]
[24A]
OIL PRESSURE SW
VSS
NEUTRAL SW
FUEL PUMP
[65B]
[65A]
[86B]
[86A]
[131B]
FUSE & DIODE ASSY
[61B]
[5A]
J-FUSE ASSY
[GRD2]
[GRD1]
[GRD3]
[33B]
IGN
SW
[33A]
ECM
[122A]
[122B]
2
24
12
9
8
18
6
3
1
1
PK
R
R
R/GY
R
LOCK
O
Y/BK
W
Y/R
PK
BK
O/W
GN/Y
TN/Y
BK
BK
R
R
R/GY
TN/Y
R/BK
O
TN/Y
BK
R
R/Y
Y/R Y/R
BK BK
GY GY
TN/Y
R/W
R
WW
BK/W
BK
R
O/W
TN/LT.GN
GN/Y
GN/Y
Y/BK
BK
BK
BK
GY
W
BK/W
R/W
2
2
3
3
4
4
5
5
6
6
7
7
8
8
9
9
10
10
12
12
11
11
12345678
AA
1
1
BB
2
2
IGN
CC
3
3
DD
4
4
AA
BB
CC
1
11
2
22
START
86
85
30
87A
87
7
8
6
2
10
KEY SW
15
11
19
13
14
TN/LT.GN
R/BK
[62B]
RELAY CENTER
DIODE
BRAKE/HORN/MUFFLER
ACCESSORY
KEY SWITCH
[131A]
1
0
2
4
31
00
+
1
R
1
+
USER + USER +
1
R/BK
R/GY
BATTERY
BATTERY
1
R
0
0
0
PARK
KEY POSITION
IGNITION SWITCH WIRING DIAGRAM
CONNECTING
WIRE SECT mm
WIRE COLOR
ON
OFF
LOCK
TACHOMETER OUTPUT
SYSTEM GROUND B
BANK ANGLE SENSOR
ACTIVE MUFFLER FEEDBACK
INJECTOR REAR OUTPUT
REAR COIL PRIMARY
FRONT COIL PRIMARY
INJECTOR FRONT OUTPUT
CHECK ENGINE LAMP
FUEL PUMP OUTPUT
SYSTEM GROUND A
SWITCHED IGNITION
SERIAL DATA TRANSMIT
SERIAL DATA RECEIVE
AIR TEMP INPUT
ENGINE TEMP INPUT
VEHICLE SPEED SENSOR
SENSOR GROUND
FAN CONTROL
KEEP ALIVE
OXYGEN SENSOR
CAMSHAFT POS SENSOR
THROTTLE POS SENSOR
5V SENSOR POWER
[11B]
(GY)
(BK)
[10B]
SPEEDOMETER
[39A]
1
VSS IN
LFW
TACH IN
GROUND
IGNITION
OIL PRESSURE
CHECK ENGINE
HIGH BEAM
RIGHT TURN
LEFT TURN
NEUTRAL
BATTERY
23456789
10 12 201918171615141311
[39B]
FEMALE
MALE
B=
A=
10AMP
10AMP
15AMP
86
85
30
87A
87
bd0020af

Table of Contents

Related product manuals