EasyManua.ls Logo

Buell 2007 FIREBOLT - Page 402

Buell 2007 FIREBOLT
631 pages
Print Icon
To Next Page IconTo Next Page
To Next Page IconTo Next Page
To Previous Page IconTo Previous Page
To Previous Page IconTo Previous Page
Loading...
2007 Buell Firebolt: Fuel System 4-61
HOME
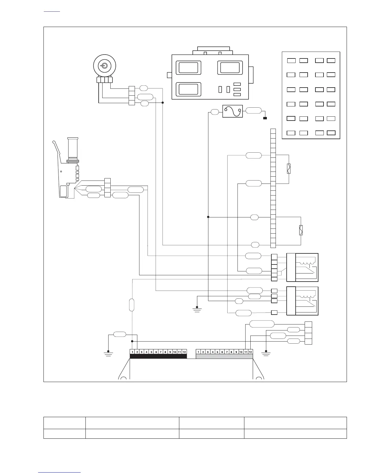
Figure 4-43. Battery Voltage Circuit
1
1
2
2
3
3
4
4
1
2
3
4
1
2
3
4
5
6
7
8
9
10
11
12
13
14
15
16
17
18
19
20
21
22
23
24
9
5
5
4
1
87
87A
30
85
86
19
15
14
11
87
87A
30
85
86
2
ISO
ISOISO
KEY SW.
IGNITION
START
19
20
21
22
23
24
13
14
15
16
17
18
1
2
3
4
5
6
7
8
9
10
11
12
11
Spare
Diode
Bk/Hn/Mflr
Fan
IGN
Acces.
Key Sw
Lights
ECM
Spare
Empty
Empty
Right Handlebar
Switch [22]
GY/O
GY
Ignition
Relay
Key Switch
Relay
Ignition
Fuse
Key Switch
Fuse
Ignition
Switch
[33]
Main Fuse
Electronic Control Module (ECM)
Connector [11]
Connector [10]
Relay
Center
Fuse Block
R
R
W/BK
R
R
R/Y
R/BK
BK
BK
W/BK
GY/O
W/BK
R/BK
GY
GY
BK
LT GN/R
V/R
To Battery
R/BK
R/BK
GY/O
b1083d4x
R
R
Top View
Top View
*ECM [10] Pin 1 also provides
power to fuel pump, both fuel injec-
tors and coil.
Data
Link
Table 4-23. Wire Harness Connectors in Figure 4-43.
NO. DESCRIPTION TYPE LOCATION
[10] ECM (black) 12-place Deutsch in fairing

Table of Contents