EasyManua.ls Logo

Canon NP6512 - Page 43

Canon NP6512
426 pages
Print Icon
To Next Page IconTo Next Page
To Next Page IconTo Next Page
To Previous Page IconTo Previous Page
To Previous Page IconTo Previous Page
Loading...
CHAPTER 2 BASIC OPERATION
COPYRIGHT
©
1999 CANON INC. CANON NP6512/6612/7120/7130/7130F REV.0 AUG. 1999 PRINTED IN JAPAN (IMPRIME AU JAPON)
2-9
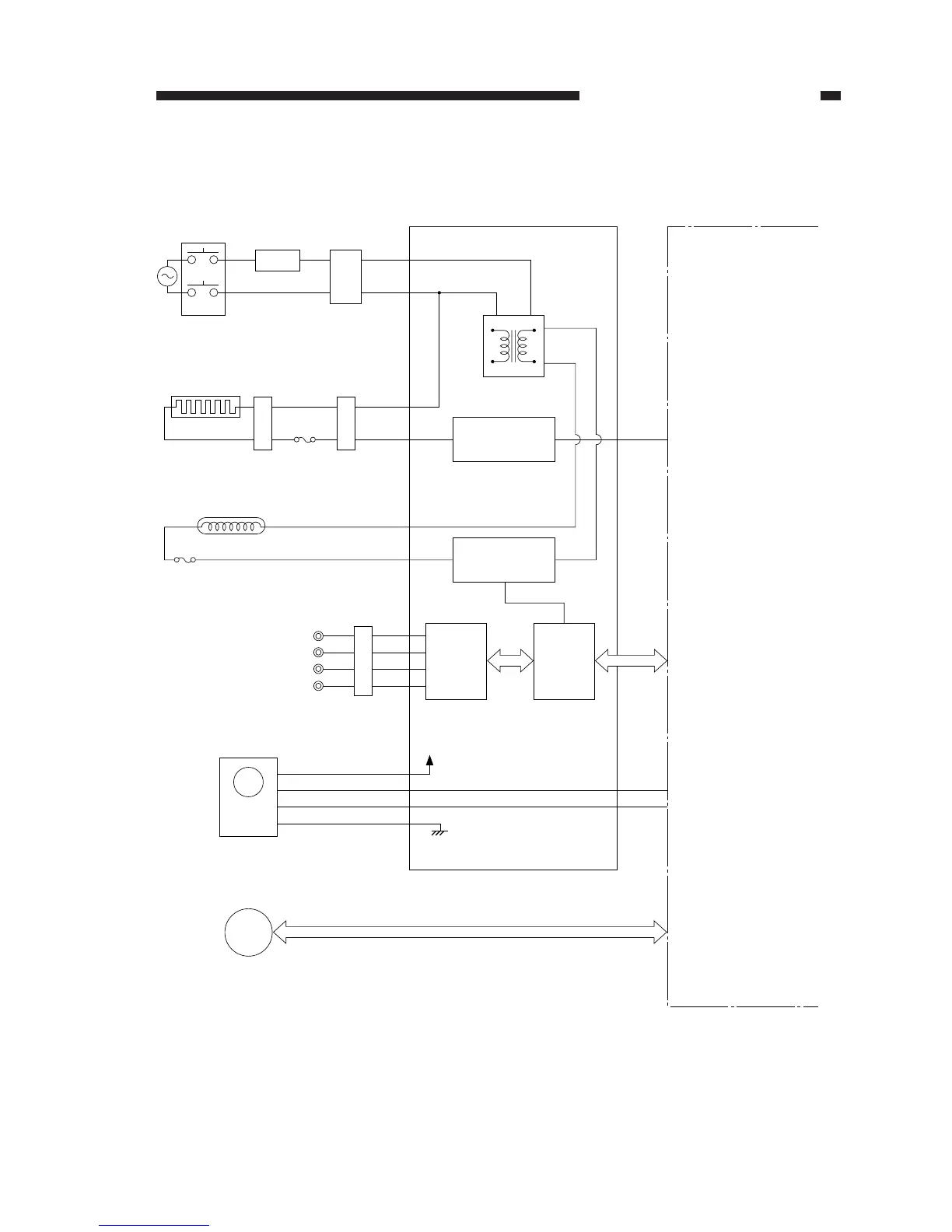
3. Outputs from the DC Controller (1/2)
Figure 2-107
J201-2
-1
DC controller PCBComposite power supply PCB
Noise filter
+24V
HVT board
High-
voltage
circuit
block
Micro-
processor
DS1
Door switch
Transformer
Line filter
(220/240V model only)
M2
Scanner/
lens drive motor
M1
Main
motor
Main motor
driver PCB
NF1
LF1
J207-1
-2
J104-2
FU1
Fixing heater
H1
J434J16
Fixing heater
activation circuit
J910-3
-1
J103-7
J104-1
Scanning lamp
LA1
Scanning lamp
activation circuit
FU2
Thermal fuse 1
Thermal
fuse 2
HEAT_TRG
Communication with
the composite power
supply
MMD
MLOCK
See p. 3-7.
When ‘0’,
the fixing heater
turns on.
See p. 2-5.
Primary charging roller
Developing cylinder
Transfer charging roller
Static eliminator

Table of Contents

Related product manuals