EasyManua.ls Logo

Carel humiSonic Compact - Auxiliary Card Connections (Optional)

Carel humiSonic Compact
70 pages
Go to English
Print Icon
To Next Page IconTo Next Page
To Next Page IconTo Next Page
To Previous Page IconTo Previous Page
To Previous Page IconTo Previous Page
Loading...
14
ENG
“Ultrasound for fancoil” +0300059IE - rel. 1.7 - 24.10.2022
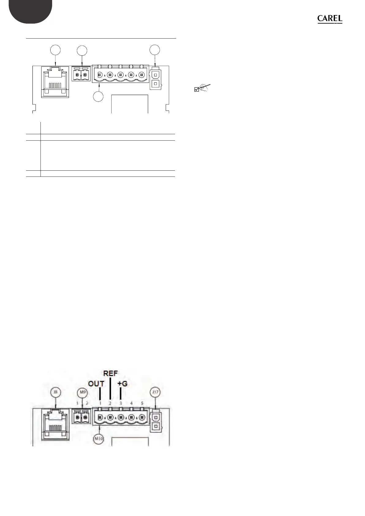
6.6 Auxiliary card connections (optional)
J17
J8
1 2 1 2 3 4 5
M9
M10
+ GND 21Vdc
Fig. 6.i
J8
tLAN terminal connection (optional) with 30 Vdc power supply
(24 Vac rectied)
M9
tLAN AUX serial connector
M10
M10.1 - + Analogue proportional controller/probe/humid.
M10.2 - + GND signal reference
M10.3 - +21Vdc for active probe supply
M10.4 - N.U.
M10.5 - N.U.
J17
AUX input - N.U.
The auxiliary card features the following connections
ON/OFF CONTROLLER (humidostat or remote switch)
jumper inputs M14.1 and M14.2 (enable) on the main board;
connect terminals M10.1 and M10.2 to a humidostat or a remote
switch (voltage-free contact)
set parameter A0=0 to enable On/O operation (see chapter
"Conguration parameters").
EXTERNAL PROPORTIONAL CONTROLLER (modulating)
jumper inputs M14.1 and M14.2 (enable) on the main board;
connect terminals M10.1 and M10.2 (production request) to an
external controller;
set parameter A0=1 to enable modulating control (see chapter
"Conguration parameters")
and parameter A2 depending on the chosen signal (0 to 10 V, 2 to 10V,
0 to 20, 4 to 20 mA) (see chapter "Conguration parameters").
CONTROL WITH CAREL HUMIDITY PROBE
jumper inputs M14.1 and M14.2 (enable) on the main board;
connect the probe to terminals M10.1, M10.2. The power line M10.3
can be connected with cable of maximum lenght of 2 m (6,6 ft); for
greater lenghts use an external power supply with the signal earth
electrically connected to the signal earth of the controller.
set parameter A0=2 to enable probe control (see chapter
"Conguration parameters") and parameter A2 depending on the
chosen signal (0 to 10 V, 2 to 10V, 0 to 20, 4 to 20 mA) (see chapter
"Conguration parameters").
Fig. 6.j
If non-CAREL probes are used, check:
voltage signal: 0 to 10 Vdc, 2 to 10 Vdc, terminal M10.1 (GND: M10.2);
current signal: 4 to 20, 0 to 20 mA, terminal M10.1 (GND: M10.2).
ENABLE PROBE TH AS HUMIDITY/ DEW POINT TEMPERATURELIMIT
In control modes A0=0, A0=1, A0=2, the built-in humidity probe TH can
be used as a limit probe, setting parameter bH=1 or bH=2 respectively.
The limit set point and proportional band are set by parameters SL and
bL.
Final checks
The following conditions represent correct electrical connection:
mains power to the humidier corresponds to the voltage shown on
the rating plate;
a mains disconnect switch has been installed so as to be able to
disconnect power to the humidier;
terminals M14.1, M14.2 are jumpered or connected to a contact to
enable operation;
if the humidier is controlled by an external controller (with auxiliary
card), the signal earth is electrically connected to the controller earth.

Table of Contents

Related product manuals