EasyManua.ls Logo

CASE CONSTRUCTION CX75C SR - Dimensions

Default Icon
256 pages
Print Icon
To Next Page IconTo Next Page
To Next Page IconTo Next Page
To Previous Page IconTo Previous Page
To Previous Page IconTo Previous Page
Loading...
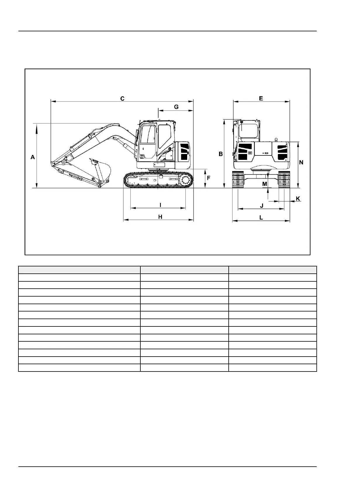
8-SPECIFICATIONS
Dimensions
Standardmodel
SMIL13CEX2897FB1
Arm
1.69m(66.54in)2.19m(86.22in)
(A)2600mm(102.36in)2860mm(112.60in)
(B)2760mm(108.66in)2760mm(108.66in)
(C)5755mm(226.57in)5755mm(226.57in)
(E)2270mm(89.37in)2270mm(89.37in)
(F)750mm(29.53in)750mm(29.53in)
(G)1425mm(56.10in)1425mm(56.10in)
(H)2845mm(112.01in)2845mm(112.01in)
(I)2210mm(87.01in)2210mm(87.01in)
(J)1870mm(73.62in)1870mm(73.62in)
(K)(standardtrackpads)450mm(17.72in)450mm(17.72in)
(L)2320mm(91.34in)2320mm(91.34in)
(M)360mm(14.17in)360mm(14.17in)
(N)1855mm(73.03in)1855mm(73.03in)
8-4

Table of Contents

Related product manuals