EasyManua.ls Logo

CASE CONSTRUCTION CX75C SR - Page 238

Default Icon
256 pages
Print Icon
To Next Page IconTo Next Page
To Next Page IconTo Next Page
To Previous Page IconTo Previous Page
To Previous Page IconTo Previous Page
Loading...
8-SPECIFICATIONS
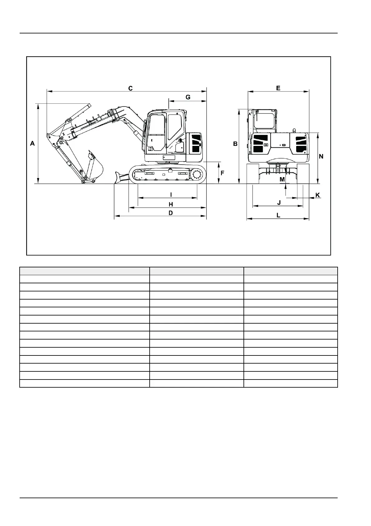
Offsetboom
SMIL13CEX2920FB3
Arm
1.75m(68.90in)2.10m(82.68in)
(A)2970mm(116.93in)3160mm(124.41in)
(B)2760mm(108.66in)2760mm(108.66in)
(C)5945mm(234.06in)5875mm(231.30in)
(D)3410mm(134.25in)3410mm(134.25in)
(E)2270mm(89.37in)2270mm(89.37in)
(F)750mm(29.53in)750mm(29.53in)
(G)1425mm(56.10in)1425mm(56.10in)
(H)2845mm(112.01in)2845mm(112.01in)
(I)2210mm(87.01in)2210mm(87.01in)
(J)1870mm(73.62in)1870mm(73.62in)
(K)(standardtrackpads)450mm(17.72in)450mm(17.72in)
(L)2320mm(91.34in)2320mm(91.34in)
(M)360mm(14.17in)360mm(14.17in)
(N)1855mm(73.03in)1855mm(73.03in)
8-6

Table of Contents

Related product manuals