EasyManua.ls Logo

CombiLift C7700 - Grease Point Chart

CombiLift C7700
81 pages
Print Icon
To Next Page IconTo Next Page
To Next Page IconTo Next Page
To Previous Page IconTo Previous Page
To Previous Page IconTo Previous Page
Loading...
C4-C5XL MK3 O&S
4-20
C4000MK3-OM-EN-11
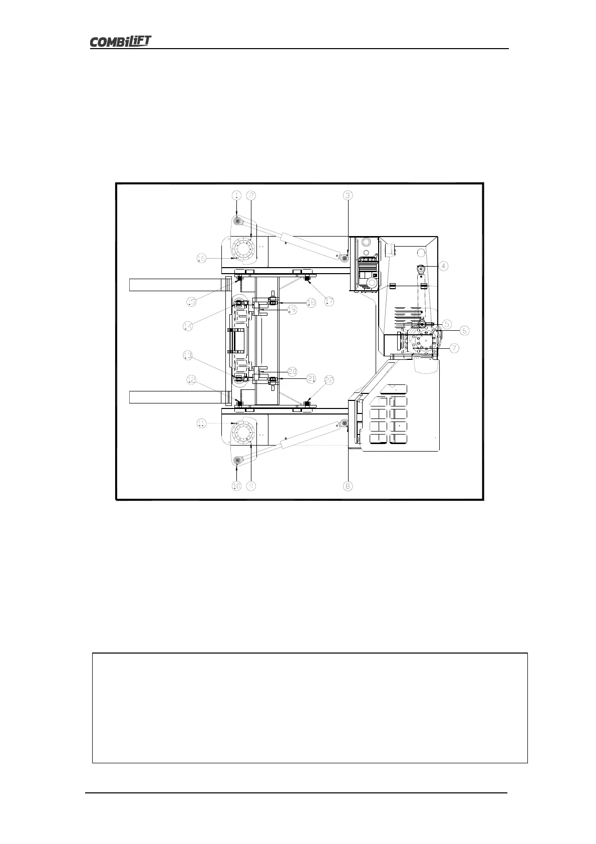
4.14: Grease Point Chart
The diagram below indicates most but not all of the points on the Combilift that
must be greased regularly. The bearings on the mast must also be greased
regularly. A copy of this diagram is located in the operator compartment in the
form of a decal / Information sticker. All Points should be greased weekly with
EP2 grease.
1. Steering Front
2. Swivel Back
3. Steering Back
4. Rear Steering
5. Rear Steering
6. Swivel Front
7. Swivel Back
8. Steering Back
9. Swivel Front
10. Steering Front
11. Swivel Front
12. Carriage Bearing
13. Front Tilt
14. Front Tilt
15. Carriage Bearing
16. Swivel Front
17. Carriage Bearing
18. Rear Tilt
19. Mast bushing
20. Mast Bushing
21. Rear Tilt
22. Carriage Bearing
Note
There may be additional grease points that have not been indicated on the
above chart. These may include bearings on the mast, and any additional
options or attachments on the machine e.g. fork positioner cylinders, side shift
attachments, telescopic attachments etc. Grease points on this additional
equipment must be located and greased weekly using EP2 grease

Table of Contents

Related product manuals