EasyManua.ls Logo

Daikin DZ20VC - Refrigerant Piping Installation; Vertical and Horizontal Piping Diagrams

Daikin DZ20VC
112 pages
Print Icon
To Next Page IconTo Next Page
To Next Page IconTo Next Page
To Previous Page IconTo Previous Page
To Previous Page IconTo Previous Page
Loading...
SERVICING
34
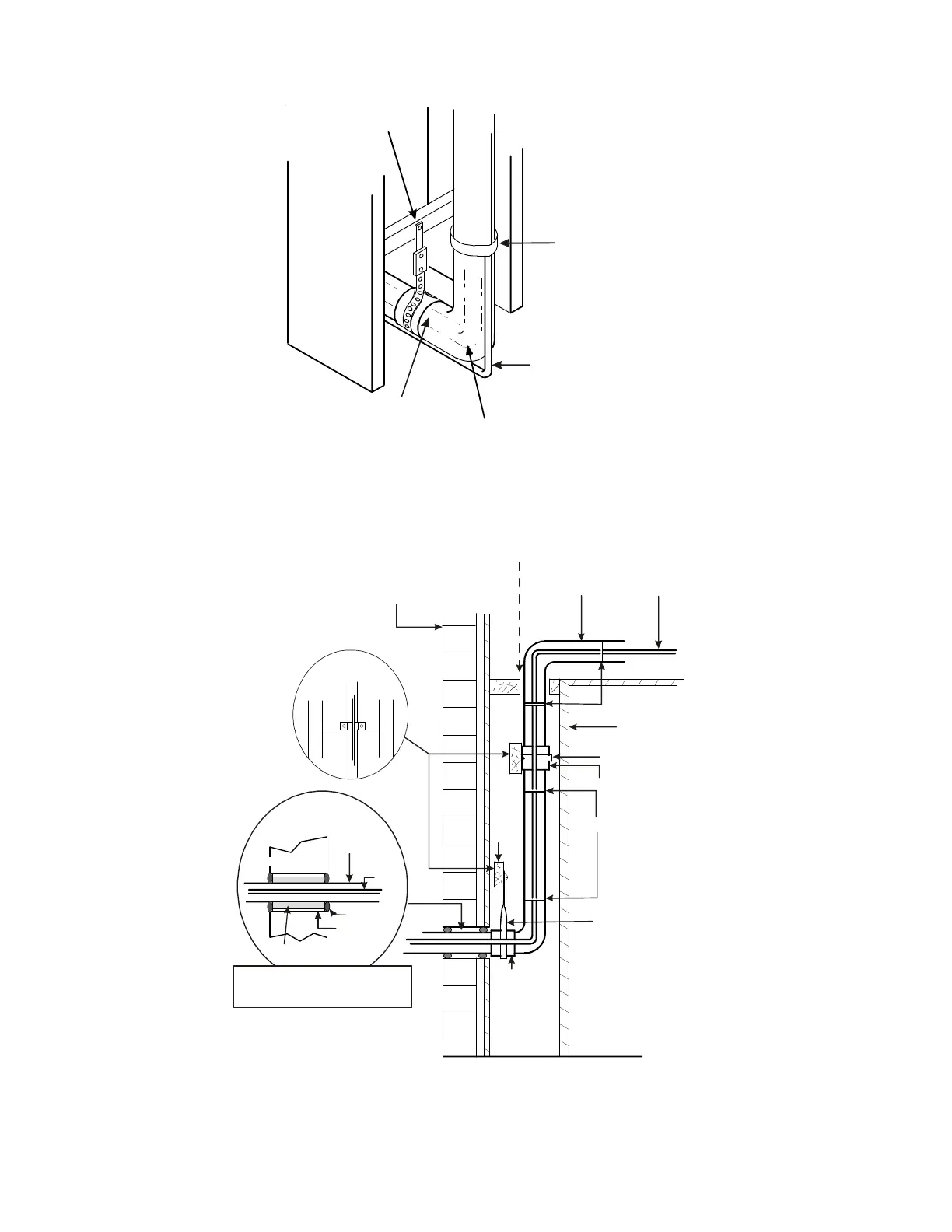
Liquid Line
Suction Line
Wrapped in Armaflex
®
Metal
Sleeve
Hanger
Wall
Stud
Liquid Line
Strapped to
Suction Line
Figure 1-1.
Installation of Refrigeration Piping From Vertical to Horizontal
Outside Wall
Inside Wall
Liquid Line
Suction Line
IMPORTANT
- Refrigerant lines must not touch wall.
Strap
Sleeve
Strap
Sleeve
Wire Tie
Wire Tie
PVC Pipe
Caulk
Outside Wall
A
rmaflex
Wrapped
Suction Line
®
Liquid
Line
Wood Block
Between Studs
I
MPORTANT:
Refrigerant lines must NOT
come into contact with structure.
Fiberglass Insulation
Wood
Block
Figure 1-2. Installation of Refrigerant Piping (Vertical)
New construction shown
NOTE: If line set is installed on the exterior of an outside wall, similar installation practices are to be used.

Table of Contents

Related product manuals