EasyManua.ls Logo

Daikin intelligent Touch Manager - Terminal Location and Schematic Connection Diagram; Wiring Specifications

Daikin intelligent Touch Manager
44 pages
Print Icon
To Next Page IconTo Next Page
To Next Page IconTo Next Page
To Previous Page IconTo Previous Page
To Previous Page IconTo Previous Page
Loading...
18 Installation Manual 3P291714-2B
DCM601A71 intelligent Touch Manager
English
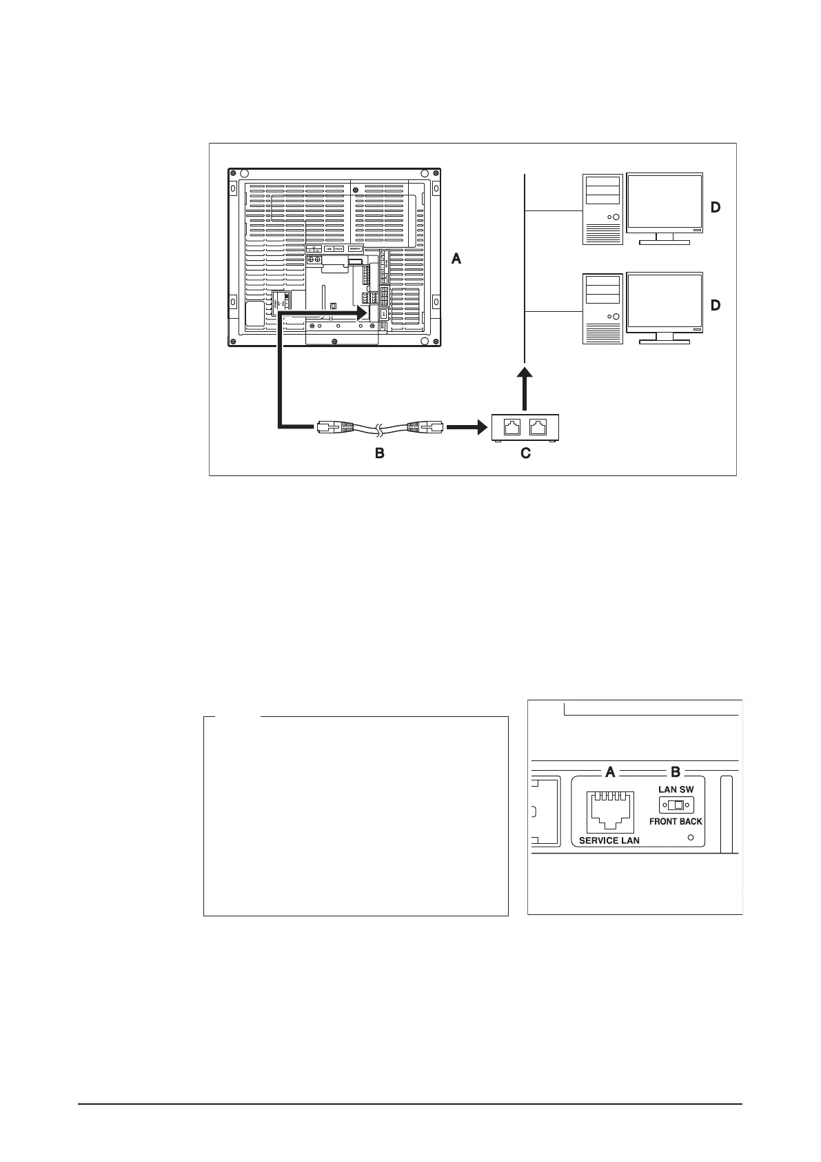
2.3.1 Terminal location and schematic connection diagram
Using a LAN cable, connect the LAN port to the network hub.
<LAN connection schematic diagram>
A Rear face of intelligent Touch Manager
B LAN cable
C Hub
D PC
2.3.2 Wiring specications
Applicable cable standard: 100Base-TX or 10Base-T
Connector standard: RJ-45
<SERVICE LAN socket and LAN SW
switch>
NOTE
When you connect the intelligent Touch Man-
ager to the LAN temporarily during installation
or maintenance, use the SERVICE LAN port
located on the front face.
The SERVICE LAN port is enabled by chang-
ing the position of the LAN SW switch beside
the SERVICE LAN to the FRONT position.
You cannot close the cover when the switch
set to “FRONT”. To close the cover, select
“BACK”.
A SERVICE LAN
B LAN SW

Table of Contents

Related product manuals