EasyManua.ls Logo

Daikin intelligent Touch Manager - Terminal Location and Schematic Connection Diagram; Wiring Specifications

Daikin intelligent Touch Manager
44 pages
Print Icon
To Next Page IconTo Next Page
To Next Page IconTo Next Page
To Previous Page IconTo Previous Page
To Previous Page IconTo Previous Page
Loading...
22 Installation Manual 3P291714-2B
DCM601A71 intelligent Touch Manager
English
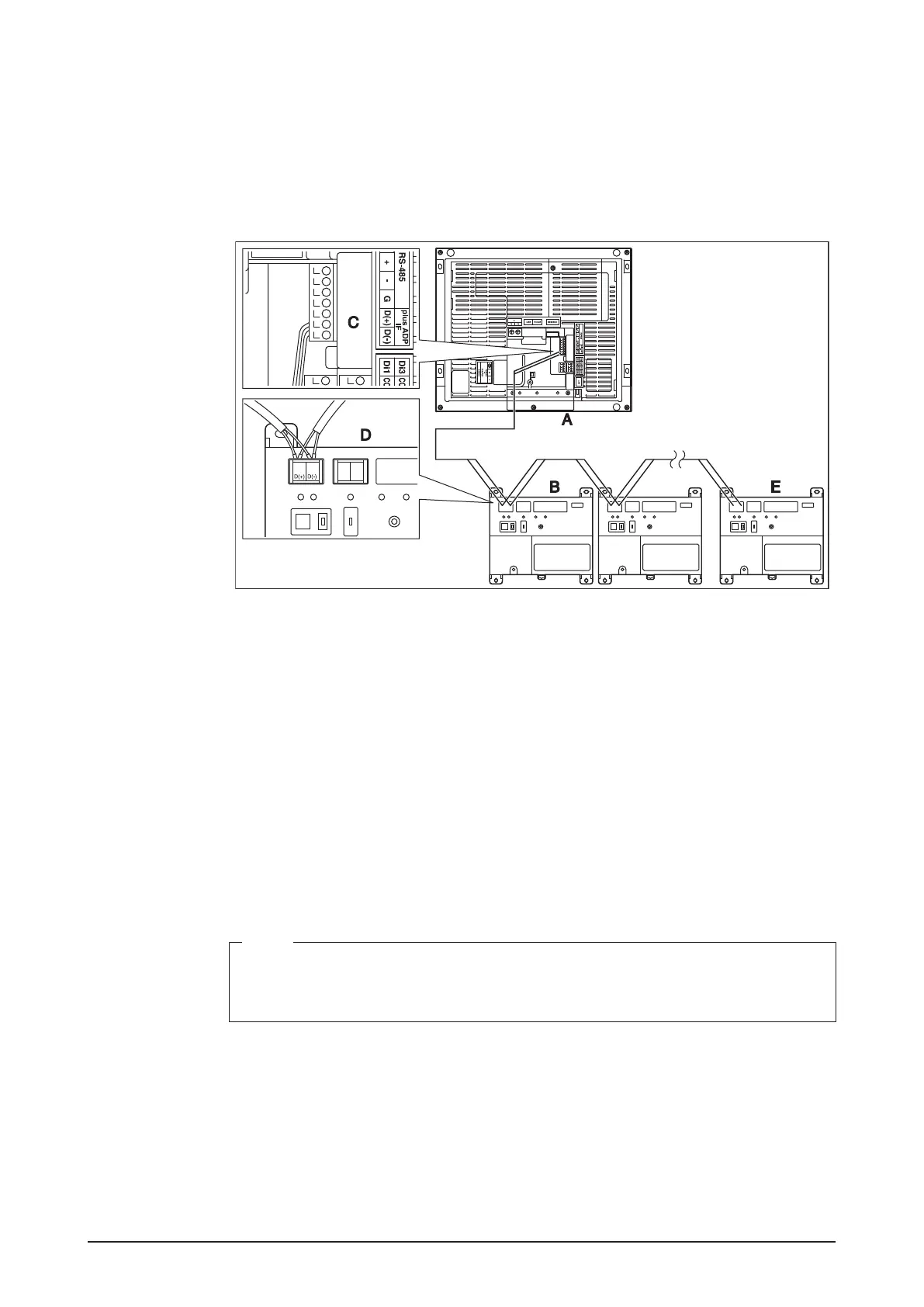
2.6.1 Terminal location and schematic connection diagram
Connect the iTM plus adaptor to the plus ADP IF terminal located on the rear face. Con-
nect the intelligent Touch Manager to the plus ADP IF terminal. As the terminals have
polarity, be sure to connect the positive wire to the “+” terminal and the negative wire to
the “–” terminal without fail. Connect the intelligent Touch Manager to the termination of
the RS-485 wiring.
<Terminal location and schematic connection diagram>
A intelligent Touch Manager
B iTM plus adaptor
C plus ADP IF (intelligent Touch Manager)
D plus ADP IF (iTM plus adaptor)
E iTM plus adaptor on which termination resistor must be enabled
(For details, refer to the “iTM plus adaptor installation manual” (EM11A030).)
2.6.2 Wiring specications
Cable type: CPEV or FCPEV cable
Core thickness: AWG 22-19
Cable length: The overall cable length between the intelligent Touch Manager and the
terminal iTM plus adaptor is 164 ft. or less.
Wiring connection type: Sequential connections
NOTE
Each air conditioner controlled via an iTM plus adaptor is also assigned a DIII address
between “1-00” to “4-15”. From the intelligent Touch Manager, it is recognized as “2:1-
00”, “3:1-02”, or the like, with the DIII-NET port number prexed.

Table of Contents

Related product manuals