EasyManua.ls Logo

Danfoss FC 102 - Page 30

Danfoss FC 102
92 pages
Print Icon
To Next Page IconTo Next Page
To Next Page IconTo Next Page
To Previous Page IconTo Previous Page
To Previous Page IconTo Previous Page
Loading...
C
C
567
22.3[ ]
0
0[ ]
58
2.3[ ]
0
0[ ]
123
4.9[ ]
188
7.4[ ]
246
9.7[ ]
0
0[ ]
C-C
130BC545.12
R
S
T
1
2
3
4
5
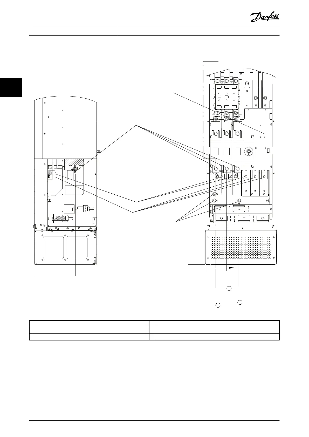
1 TB6 Terminal block for contactor 4 Motor Terminals
2 Mains Terminals 5 Earth/Ground Terminals
3 Brake Terminals
Illustration 3.21 Terminal Locations, D8h with Contactor and Disconnect Options
Installation
Operating Instructions
28 Danfoss A/S © Rev. 06/2014 All rights reserved. MG16D302
33

Table of Contents

Other manuals for Danfoss FC 102

Related product manuals