EasyManua.ls Logo

Danfoss FC 102 - 5.6 Connecting to Ground

Danfoss FC 102
92 pages
Print Icon
To Next Page IconTo Next Page
To Next Page IconTo Next Page
To Previous Page IconTo Previous Page
To Previous Page IconTo Previous Page
Loading...
202
8[ ]
0
0[ ]
84.5
3[ ]
0
0[ ]
154.5
6[ ]
224.5
9[ ]
605
23.8[ ]
0
0[ ]
R
S
T
130BC546.11
1
2
3
4
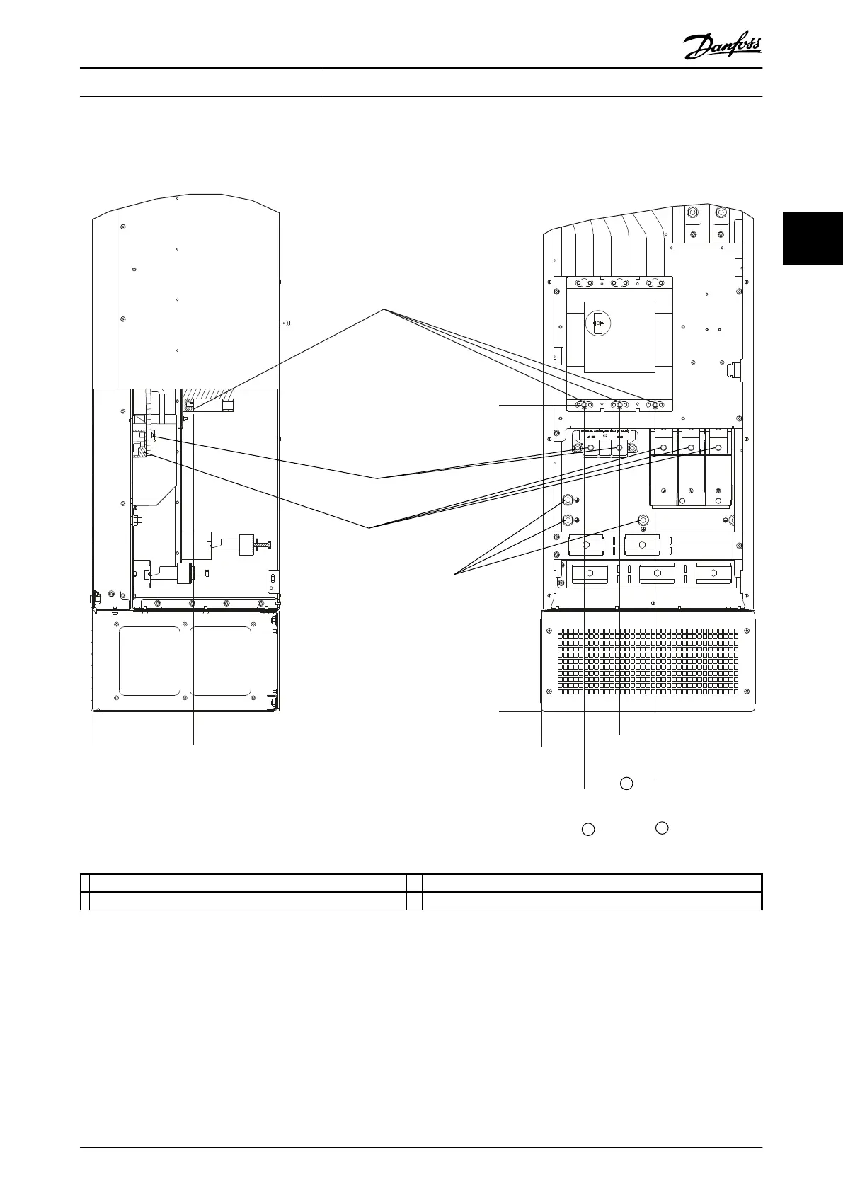
1 Mains Terminals 3 Motor Terminals
2 Brake Terminals 4 Earth/Ground Terminals
Illustration 3.22 Terminal Locations, D8h with Circuit Breaker Option
Installation
Operating Instructions
MG16D302 Danfoss A/S © Rev. 06/2014 All rights reserved. 29
3 3

Table of Contents

Other manuals for Danfoss FC 102

Related product manuals