EasyManua.ls Logo

Danfoss VLT AQUA Drive FC 202 - Page 119

Danfoss VLT AQUA Drive FC 202
162 pages
Print Icon
To Next Page IconTo Next Page
To Next Page IconTo Next Page
To Previous Page IconTo Previous Page
To Previous Page IconTo Previous Page
Loading...
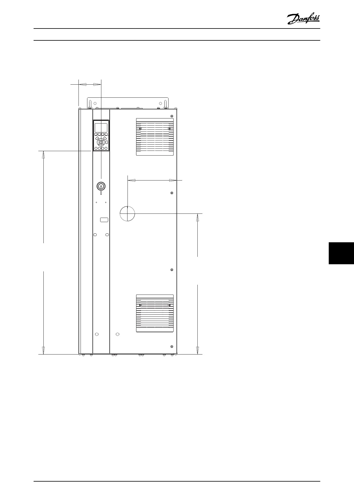
10.9.2 D2h Exterior Dimensions
130BF321.10
96 (3.8)
211 (8.3)
602 (23.7)
871 (34.3)
Illustration 10.7 Front View of D2h
Specications Operating Guide
MG21A502 Danfoss A/S © 09/2018 All rights reserved. 117
10 10

Table of Contents

Other manuals for Danfoss VLT AQUA Drive FC 202

Related product manuals