EasyManua.ls Logo

Danfoss VLT AQUA Drive FC 202 - Page 122

Danfoss VLT AQUA Drive FC 202
162 pages
Print Icon
To Next Page IconTo Next Page
To Next Page IconTo Next Page
To Previous Page IconTo Previous Page
To Previous Page IconTo Previous Page
Loading...
395 (15.6)
523 (20.6)
105
130BF670.10
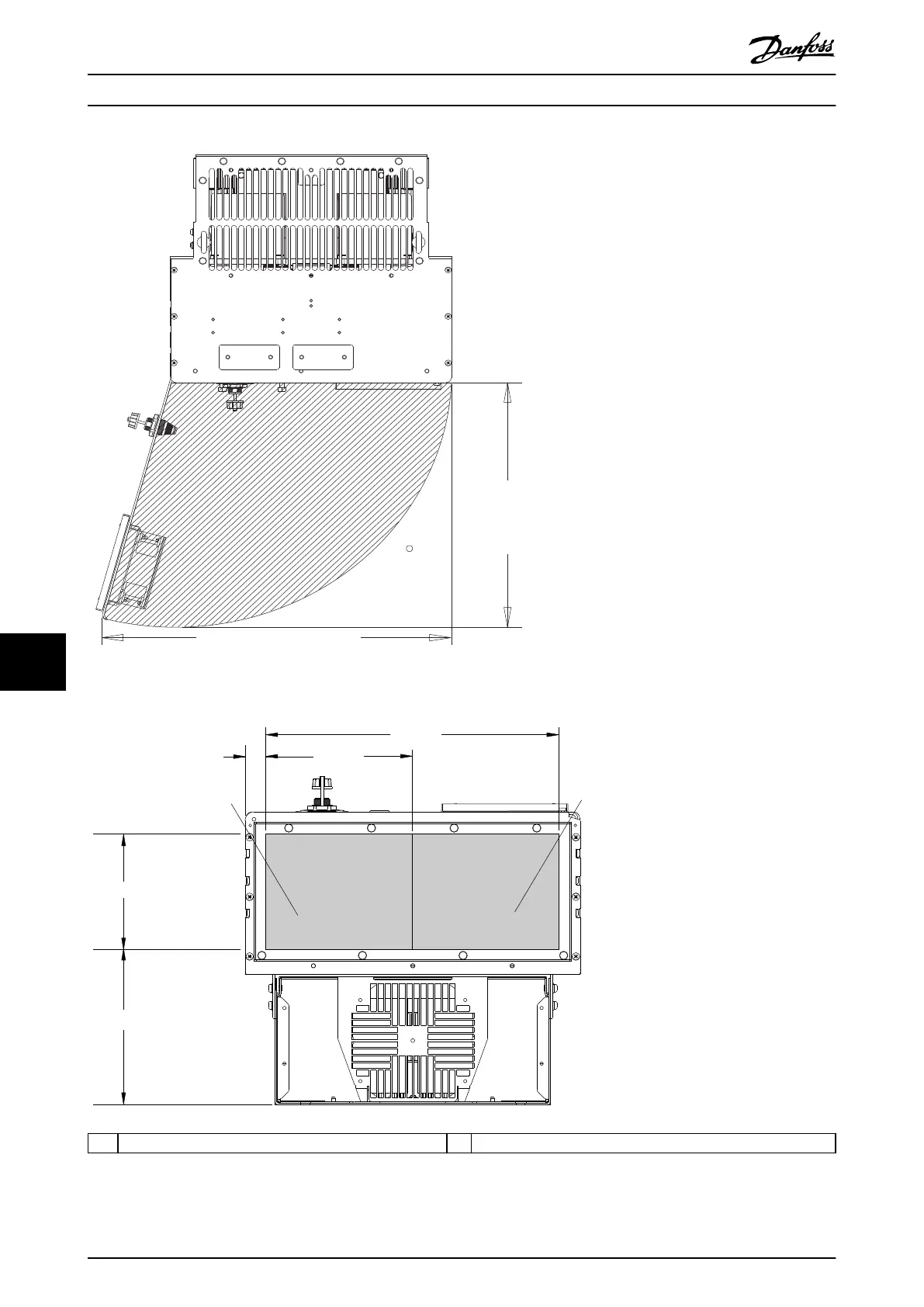
Illustration 10.10 Door Clearance for D2h
130BF608.10
27 (1.0)
185 (7.3)
1
2
369 (14.5)
196 (7.7)
145 (5.7)
1 Mains side 2 Motor side
Illustration 10.11 Gland Plate Dimensions for D2h
Specications VLT® AQUA Drive FC 202
120 Danfoss A/S © 09/2018 All rights reserved. MG21A502
1010

Table of Contents

Other manuals for Danfoss VLT AQUA Drive FC 202

Related product manuals