EasyManua.ls Logo

Danfoss VLT AQUA Drive FC 202 - Page 126

Danfoss VLT AQUA Drive FC 202
162 pages
Print Icon
To Next Page IconTo Next Page
To Next Page IconTo Next Page
To Previous Page IconTo Previous Page
To Previous Page IconTo Previous Page
Loading...
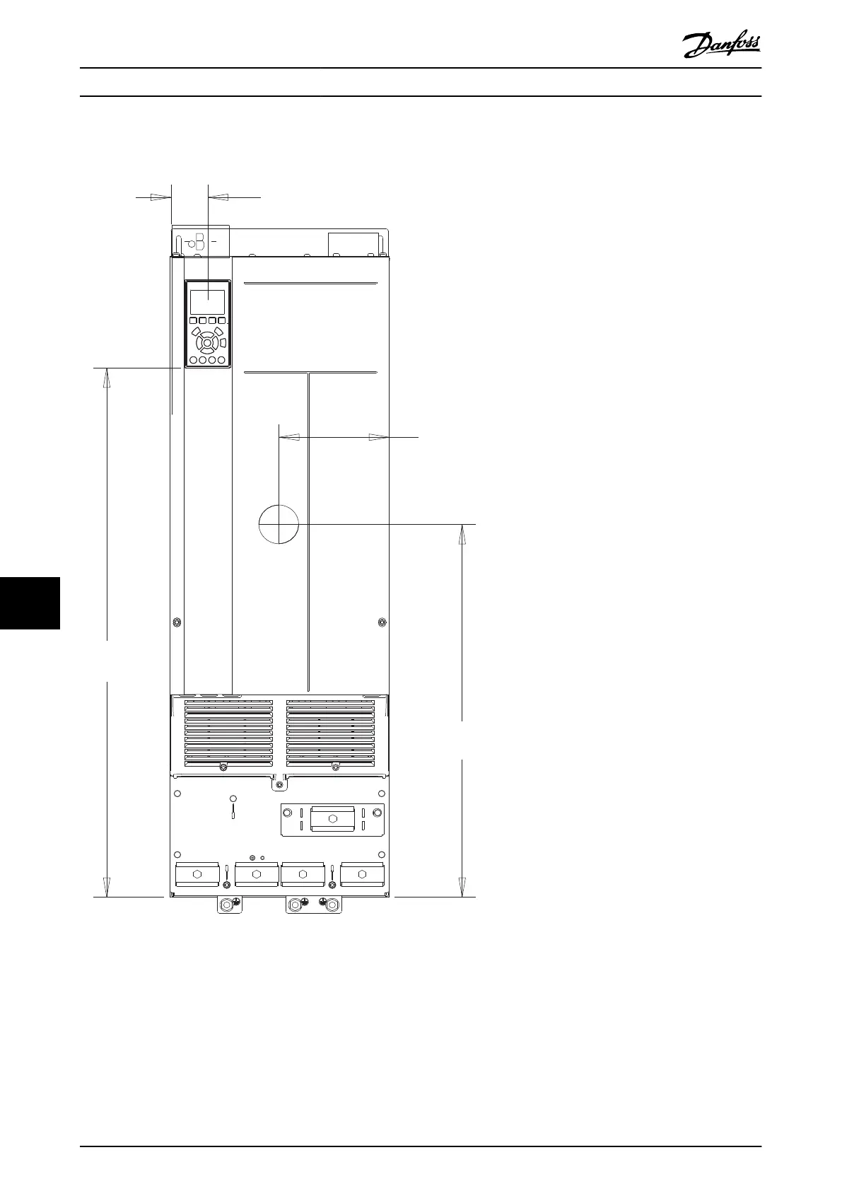
10.9.4 D4h Enclosure Dimensions
130BF323.10
176 (6.9)
611 (24.1)
59 (2.3)
868 (34.2)
Illustration 10.15 Front View of D4h
Specications VLT® AQUA Drive FC 202
124 Danfoss A/S © 09/2018 All rights reserved. MG21A502
1010

Table of Contents

Other manuals for Danfoss VLT AQUA Drive FC 202

Related product manuals