EasyManua.ls Logo

Danfoss VLT AQUA Drive FC 202 - Page 128

Danfoss VLT AQUA Drive FC 202
162 pages
Print Icon
To Next Page IconTo Next Page
To Next Page IconTo Next Page
To Previous Page IconTo Previous Page
To Previous Page IconTo Previous Page
Loading...
B
130BF804.10
B
857 (33.7)
A
A
320 (12.6)
280 (11.0)
350 (13.8)
107
(4.2)
213 (8.4)
1122 (44.2)
1096 (43.1)
1051 (41.4)
271 (10.7)
130 (5.1)
25 (1.0)
33 (1.3)
11 (0.4)
40
(1.6)
11 (0.4)
9 (0.3)
20 (0.8)
24 (0.9)
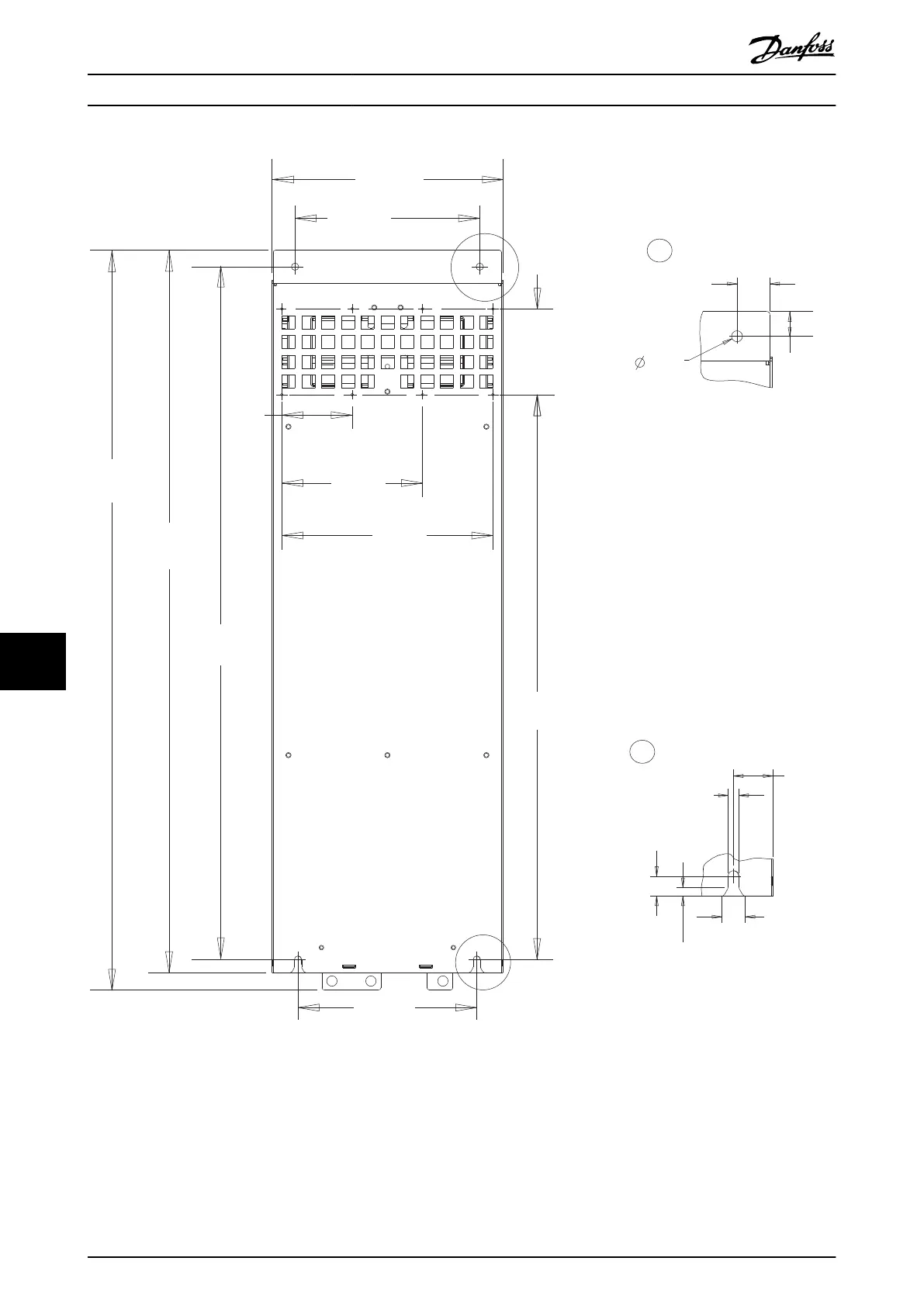
Illustration 10.17 Back View of D4h
Specications VLT® AQUA Drive FC 202
126 Danfoss A/S © 09/2018 All rights reserved. MG21A502
1010

Table of Contents

Other manuals for Danfoss VLT AQUA Drive FC 202

Related product manuals