EasyManua.ls Logo

Danfoss VLT AQUA Drive FC 202 - Page 131

Danfoss VLT AQUA Drive FC 202
162 pages
Print Icon
To Next Page IconTo Next Page
To Next Page IconTo Next Page
To Previous Page IconTo Previous Page
To Previous Page IconTo Previous Page
Loading...
130BF806.10
B
B
1276
(50.2)
64
(2.5)
A
A
M10
M10
325 (12.8)
306 (12.1)
276 (10.9)
180 (7.1)
130
(5.1)
123
(4.8)
78
(3.1)
200
(7.9)
1324
(52.1)
1111
(43.7)
130 (5.1)
123
(4.8)
78
(3.1
200
(7.9)
200 (7.9)
220 (8.7)
25
(1)
4X 11 (0.4)
63 (2.5)
15 (0.6)
11 (0.4)
24 (0.9)
20
(0.8)
9
(0.3)
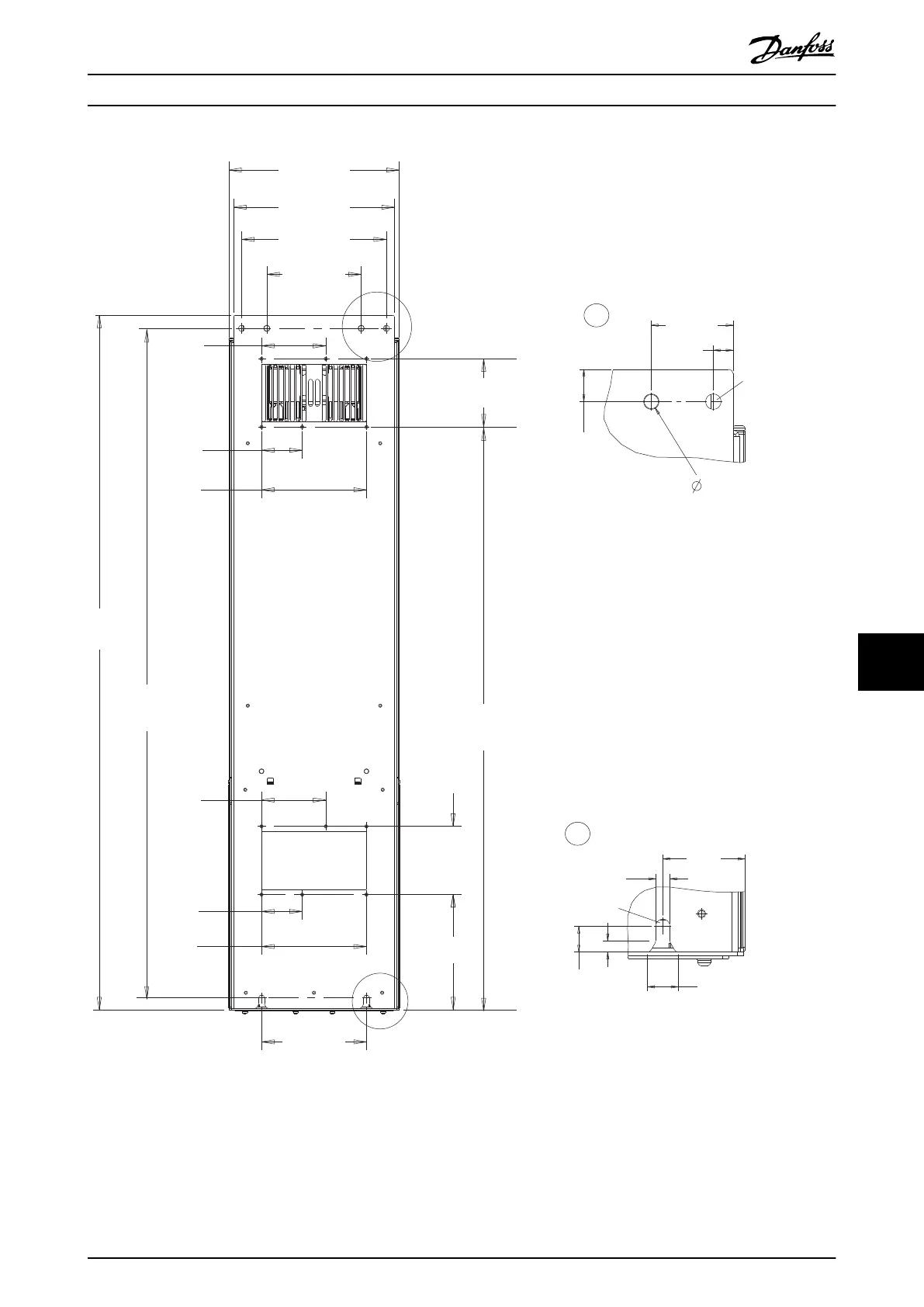
Illustration 10.20 Back View of D5h
Specications Operating Guide
MG21A502 Danfoss A/S © 09/2018 All rights reserved. 129
10 10

Table of Contents

Other manuals for Danfoss VLT AQUA Drive FC 202

Related product manuals