EasyManua.ls Logo

Danfoss VLT AQUA Drive FC 202 - 9.3 Warnings and Alarms Reference

Danfoss VLT AQUA Drive FC 202
162 pages
Print Icon
To Next Page IconTo Next Page
To Next Page IconTo Next Page
To Previous Page IconTo Previous Page
To Previous Page IconTo Previous Page
Loading...
130BF669.10
404 (15.9)
298 (11.7)
105
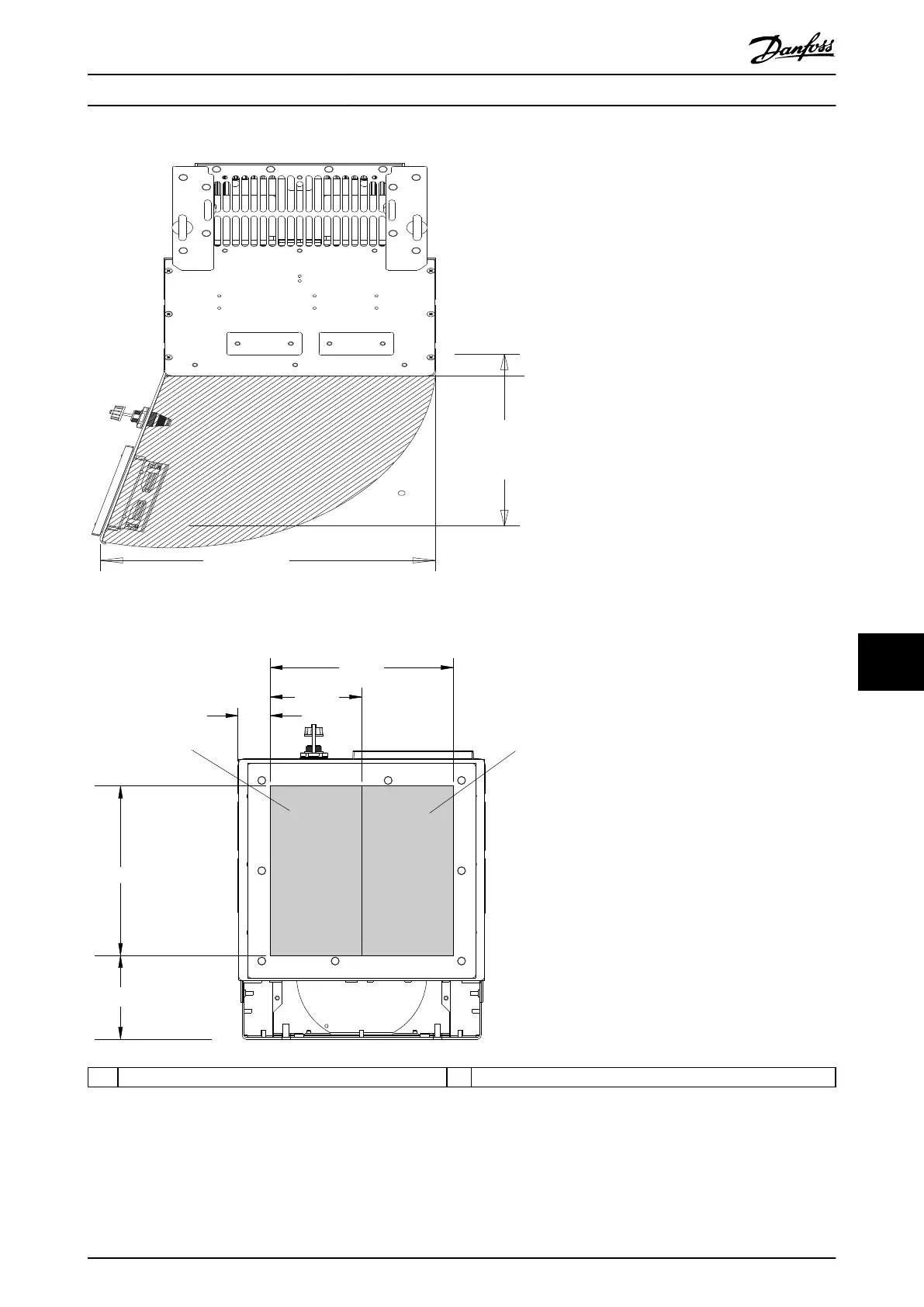
Illustration 10.22 Door Clearance for D5h
111 (4.4)
224 (8.8)
242 (9.5)
121 (4.8)
43 (1.7)
1 2
130BF609.10
1 Mains side 2 Motor side
Illustration 10.23 Gland Plate Dimensions for D5h
Specications Operating Guide
MG21A502 Danfoss A/S © 09/2018 All rights reserved. 131
10 10

Table of Contents

Other manuals for Danfoss VLT AQUA Drive FC 202

Related product manuals