EasyManua.ls Logo

Danfoss VLT AQUA Drive FC 202 - Page 136

Danfoss VLT AQUA Drive FC 202
162 pages
Print Icon
To Next Page IconTo Next Page
To Next Page IconTo Next Page
To Previous Page IconTo Previous Page
To Previous Page IconTo Previous Page
Loading...
A
M10
25 (1)
4X 11 (0.4)
63 (2.5)
15 (0.6)
A
B
B
130BF808.10
325 (12.8)
306 (12.1)
276 (10.9)
180 (7.1)
130
(5.1)
1452
(57.2)
200 (7.9)
559 (22.0)
130 (5.1)
200
(7.9)
78
(3.1)
123
(4.8)
1615
(63.6)
1663
(65.5)
200
(7.9)
78
(3.1)
123
(4.8)
24 (0.9)
20 (0.8)
9 (0.1)
64 (3.0)
11 (0.4)
M10
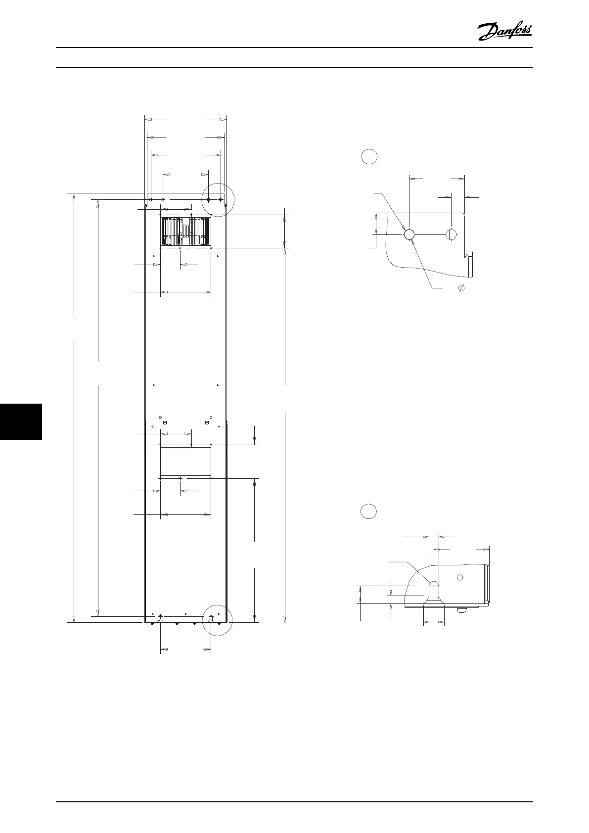
Illustration 10.26 Back View of D6h
Specications VLT® AQUA Drive FC 202
134 Danfoss A/S © 09/2018 All rights reserved. MG21A502
1010

Table of Contents

Other manuals for Danfoss VLT AQUA Drive FC 202

Related product manuals