EasyManua.ls Logo

Danfoss VLT AQUA Drive FC 202 - Page 138

Danfoss VLT AQUA Drive FC 202
162 pages
Print Icon
To Next Page IconTo Next Page
To Next Page IconTo Next Page
To Previous Page IconTo Previous Page
To Previous Page IconTo Previous Page
Loading...
130BF669.10
404 (15.9)
298 (11.7)
105
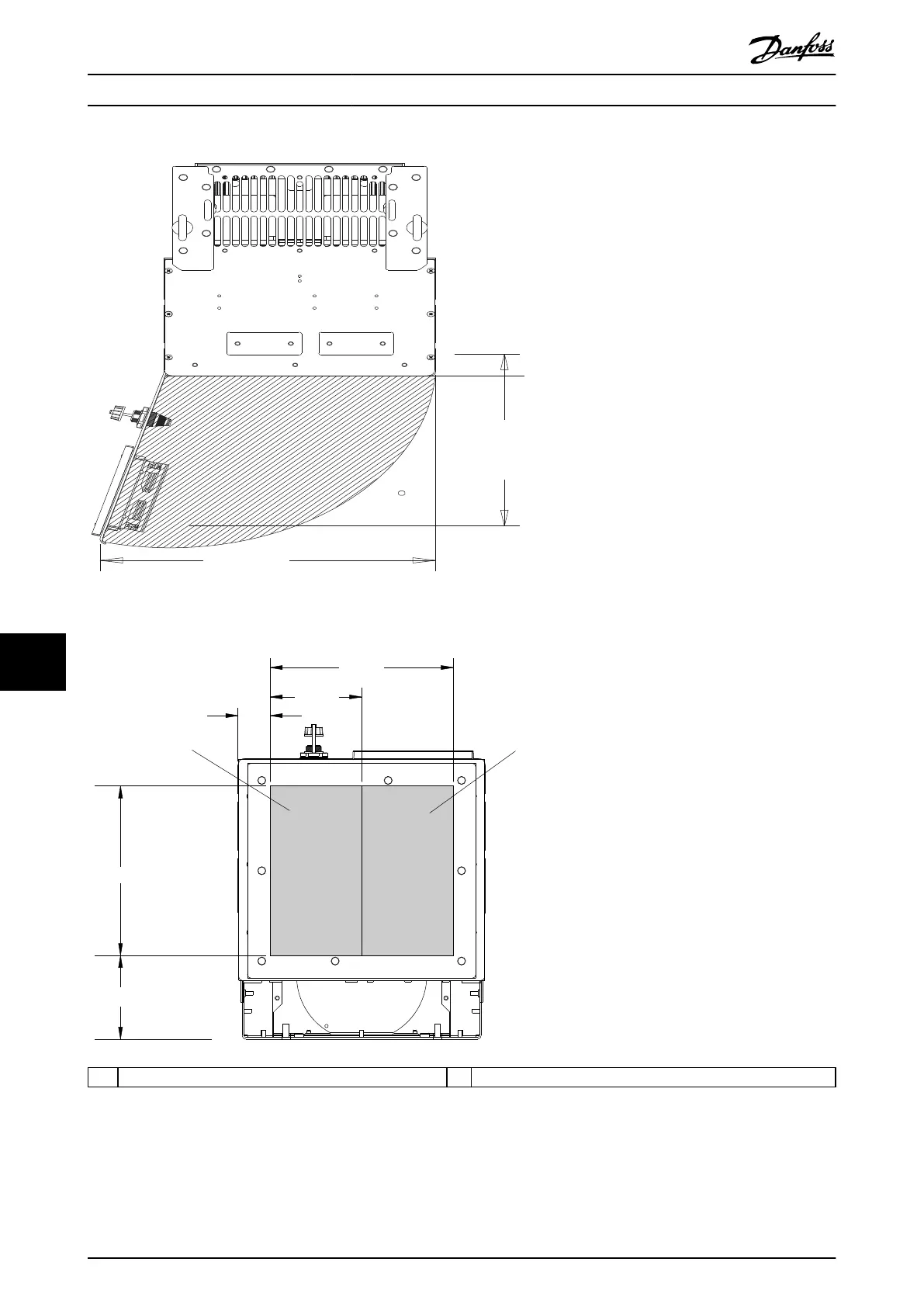
Illustration 10.28 Door Clearance for D6h
111 (4.4)
224 (8.8)
242 (9.5)
121 (4.8)
43 (1.7)
1 2
130BF609.10
1 Mains side 2 Motor side
Illustration 10.29 Gland Plate Dimensions for D6h
Specications VLT® AQUA Drive FC 202
136 Danfoss A/S © 09/2018 All rights reserved. MG21A502
1010

Table of Contents

Other manuals for Danfoss VLT AQUA Drive FC 202

Related product manuals