EasyManua.ls Logo

Danfoss VLT AQUA Drive FC 202

Danfoss VLT AQUA Drive FC 202
162 pages
To Next Page IconTo Next Page
To Next Page IconTo Next Page
To Previous Page IconTo Previous Page
To Previous Page IconTo Previous Page
Loading...
130BF369.10
567 (22.3)
0.0
58 (2.3)
0.0
123 (4.9)
188 (7.4)
1
2
3
4
5
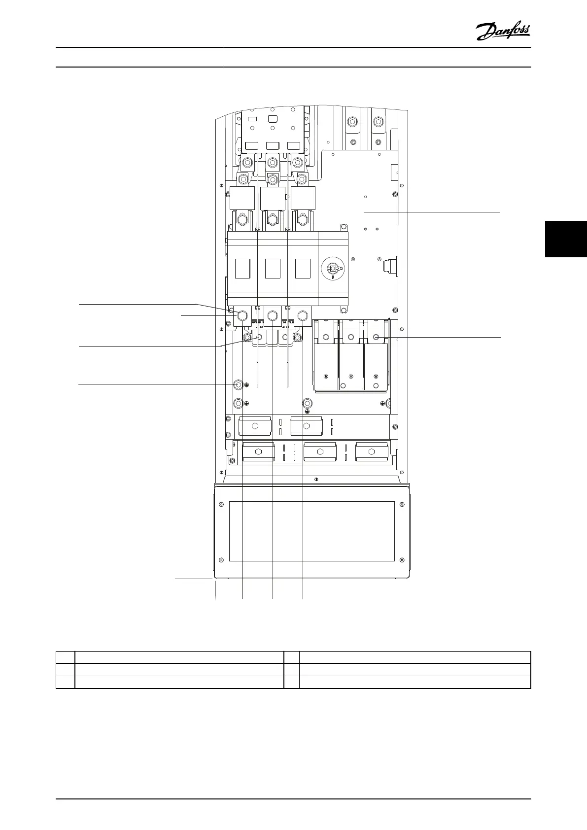
1 Mains terminals 4 TB6 terminal block for contactor
2 Brake terminals 5 Motor terminals
3 Ground terminals
Illustration 5.31 D8h Terminal Dimensions with Contactor and Disconnect Options (Front View)
Electrical Installation Operating Guide
MG21A502 Danfoss A/S © 09/2018 All rights reserved. 59
5 5

Table of Contents

Other manuals for Danfoss VLT AQUA Drive FC 202

Related product manuals