EasyManua.ls Logo

Danfoss VLT AQUA Drive FC 202

Danfoss VLT AQUA Drive FC 202
162 pages
To Next Page IconTo Next Page
To Next Page IconTo Next Page
To Previous Page IconTo Previous Page
To Previous Page IconTo Previous Page
Loading...
130BF370.10
246 (9.7)
0.0
1
2
3
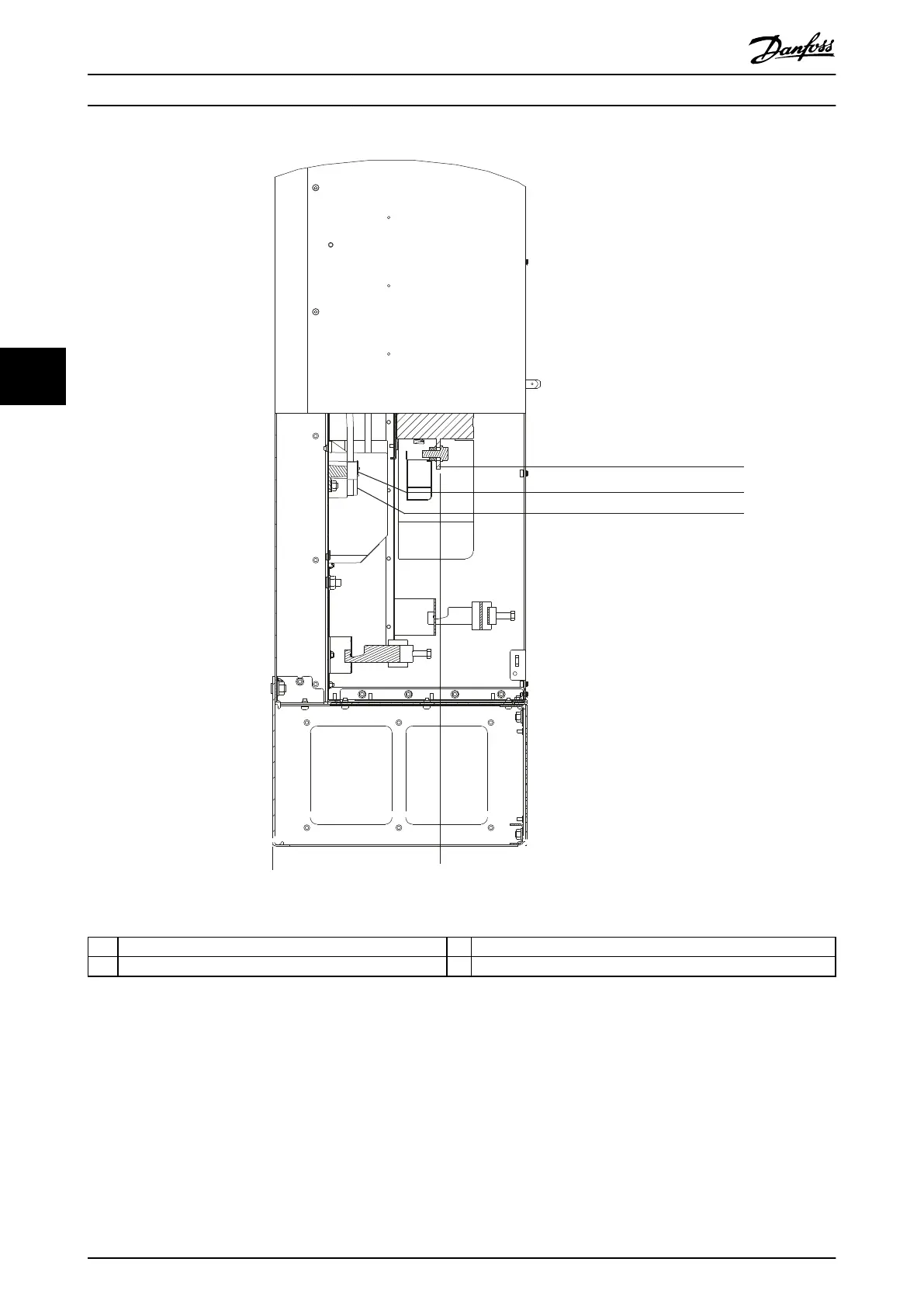
1 Mains terminals 3 Motor terminals
2 Brake terminals
Illustration 5.32 D8h Terminal Dimensions with Contactor and Disconnect Options (Side View)
Electrical Installation VLT® AQUA Drive FC 202
60 Danfoss A/S © 09/2018 All rights reserved. MG21A502
55

Table of Contents

Other manuals for Danfoss VLT AQUA Drive FC 202

Related product manuals