EasyManua.ls Logo

Danfoss VLT AQUA Drive FC 202 - Page 64

Danfoss VLT AQUA Drive FC 202
162 pages
Print Icon
To Next Page IconTo Next Page
To Next Page IconTo Next Page
To Previous Page IconTo Previous Page
To Previous Page IconTo Previous Page
Loading...
202 (8.0)
130BF372.10
0.0
1
2
3
1
3
2
M10
20 (0.8)
15 (0.6)
40 (1.6)
M10
15 (0.6)
16 (0.6)
32 (1.3)
M10
20
14 (0.5)
18 (0.7)
(0.8)
35 (1.4)
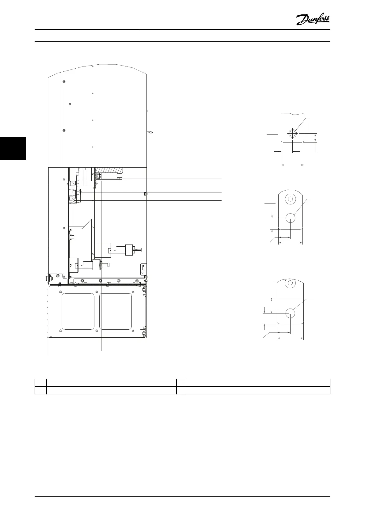
1 Mains terminals 3 Motor terminals
2 Brake terminals
Illustration 5.34 D8h Terminal Dimensions with Circuit Breaker Option (Side View)
Electrical Installation VLT® AQUA Drive FC 202
62 Danfoss A/S © 09/2018 All rights reserved. MG21A502
55

Table of Contents

Other manuals for Danfoss VLT AQUA Drive FC 202

Related product manuals