EasyManua.ls Logo

Eaton SVX9000 Series - 9000 X Dimensions, NEMA Type 1 and NEMA Type 12, FR9

Eaton SVX9000 Series
84 pages
To Next Page IconTo Next Page
To Next Page IconTo Next Page
To Previous Page IconTo Previous Page
To Previous Page IconTo Previous Page
Loading...
June 2006
20
For more information visit: www.EatonElectrical.com CA04000006E
SVX9000 Adjustable Frequency Drives
Open Drives
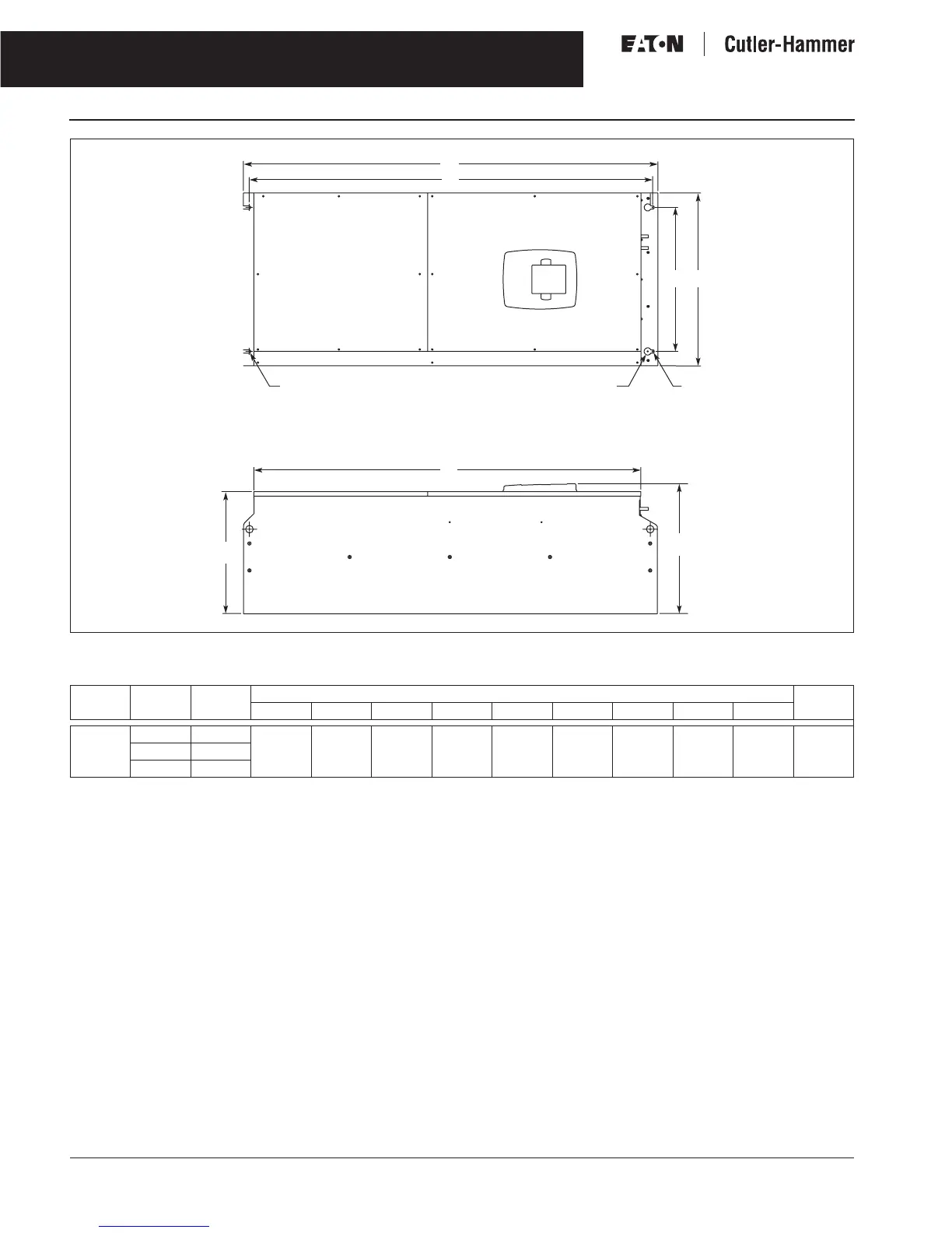
Figure 7. 9000X Dimensions, NEMA Type 1 and NEMA Type 12, FR9
Table 35. 9000X Drive Dimensions, FR9
R2
R1
H1
H2
H3
R2
W2 W1
D2
D1
Frame
Size
Voltage hp (I
H
) Approximate Dimensions in Inches (mm) Weight
lbs. (kg)
H1 H2 H3 D1 D2 W1 W2 R1 dia. R2 dia.
FR9 230V 75 – 100 45.3
(1150)
44.1
(1120)
42.4
(1076)
13.4
(340)
14.3
(362)
18.9
(480)
15.7
(400)
.8
(20)
.4
(9)
321.9
(146)
480V 150 – 200
575V 100 – 175

Table of Contents

Related product manuals