EasyManua.ls Logo

Eaton SVX9000 Series - 9000 X Dimensions, FR11 Open Chassis

Eaton SVX9000 Series
84 pages
To Next Page IconTo Next Page
To Next Page IconTo Next Page
To Previous Page IconTo Previous Page
To Previous Page IconTo Previous Page
Loading...
June 2006
26
For more information visit: www.EatonElectrical.com CA04000006E
SVX9000 Adjustable Frequency Drives
Open Drives
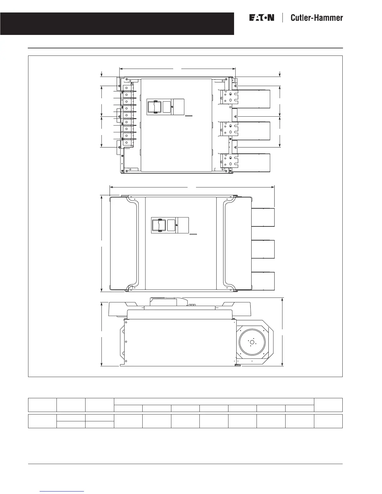
Figure 13. 9000X Dimensions, FR11 Open Chassis
Table 41. Dimensions for 9000X, FR11 Open Chassis
H1
H2
D1
W2
W2
W3
W2
W2
W3
W1
Shown without
terminal cover
D2
Frame
Size
Voltage hp (I
H
) Approximate Dimensions in Inches (mm) Weight
lbs. (kg)
W1 W2 W3 H1 H2 D1 D2
FR11 480V 400 – 550 27.9
(709)
8.86
(225)
2.6
(67)
45.5
(1155)
33.5
(850)
19.8
(503)
18.4
(468)
833
(378)
575V 400 – 500

Table of Contents

Related product manuals