EasyManua.ls Logo

Eaton SVX9000 Series - 9000 X Dimensions, NEMA Type 1 and NEMA Type 12 FR10 Freestanding Drive

Eaton SVX9000 Series
84 pages
To Next Page IconTo Next Page
To Next Page IconTo Next Page
To Previous Page IconTo Previous Page
To Previous Page IconTo Previous Page
Loading...
June 2006
CA04000006E For more information visit: www.EatonElectrical.com
23
SVX9000 Adjustable Frequency Drives
Open Drives
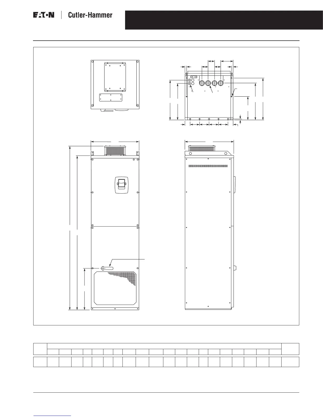
Figure 10. 9000X Dimensions, NEMA Type 1 and NEMA Type 12 FR10 Freestanding Drive
Table 38. Dimensions for 9000X, FR10 Freestanding Drive
Dia. 3
Dia. 2
Dia. 1
W5
W6
W4 W4
D4
D2
W2
W2
D5
D3
D6 D7
W3 W3 W3 W3
H1
H2
H3
W1
D1
Operator
(Shown with
Optional
Disconnect)
W6
W7
Frame
Size
Approximate Dimensions in Inches (mm) Weight
lbs. (kg)
W1 W2 W3 W4 W5 W6 W7 H1 H2 H3 D1 D2 D3 D4 D5 D6 D7 Dia. 1 Dia. 2 Dia. 3
FR10 23.43
(595)
2.46
(62.5)
4.53
(115)
.79
(20)
5.95
(151)
2.95
(75)
3.11
(79)
79.45
(2018)
74.80
(1900)
20.18
(512.5)
23.70
(602)
17.44
(443)
19.02
(483)
.47
(12)
11.22
(285)
17.60
(447)
20.08
(510)
.83
(21)
1.89
(48)
.43
(11)
857
(389)

Table of Contents

Related product manuals