EasyManua.ls Logo

Eaton SVX9000 Series - Enclosure Size 4

Eaton SVX9000 Series
84 pages
To Next Page IconTo Next Page
To Next Page IconTo Next Page
To Previous Page IconTo Previous Page
To Previous Page IconTo Previous Page
Loading...
June 2006
58
For more information visit: www.EatonElectrical.com CA04000006E
SVX9000 Adjustable Frequency Drives
Enclosed Drives
Enclosure Size 4
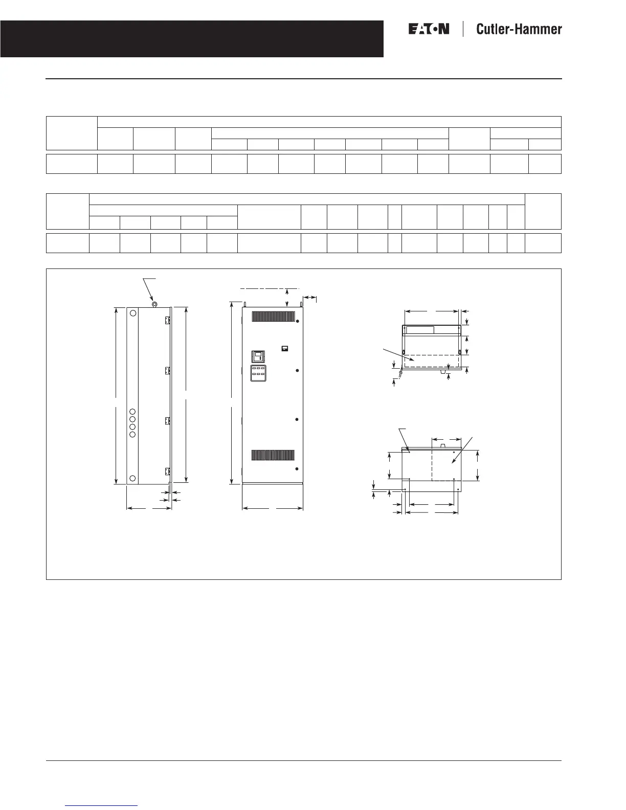
Table 89. Approximate Dimensions and Shipping Weight — Enclosed Products
Table 89. Approximate Dimensions and Shipping Weight — Enclosed Products (Continued)
Figure 26. Approximate Dimensions
Enclosure
Size
Dimensions in Inches (mm)
Wide
A
High
B
Deep
C
Mounting H Min. Air Space
DD1E E1F GG1 J K
4 26.4
(671)
90.0
(2286)
19.4
(493)
19.5
(495)
3.3
(83)
23.0
(584)
1.5
(38)
11.7
(298)
5.5
(140)
.9
(24)
89.4
(2270)
4.0
(102)
3.0
(76)
Enclosure
Size
Dimensions in Inches (mm) Max.
Approx.
Ship. Wt.
lbs. (kg)
Cable Entry Door Clearance
S
T U V W RR SS TT UU VV
LMNPR
4 5.3
(133)
23.4
(594)
13.8
(351)
1.0
(25)
11.2
(286)
26.4
(669)
1.5
(38)
8.0
(204)
4.8
(121)
92.5
(2349)
.8
(19)
1.3
(32)
825 (375)
.44 (11.2)
Mounting Holes
6 Places
D
E
R
MP
.50 (12.7)
Lifting Eyes
2 Places
H
C A
TT
SS
B
S
F
G
V
U
L
T
Top View
Bottom View
N
J
K
RR
D1
E1
G1
NEMA Type 1, NEMA Type 12
NEMA Type 12 Includes Cover Plates Over Louvers
For Reference Only,
Dimensions Subject
to Change.
For Cable
Entry
For Cable
Entry

Table of Contents

Related product manuals