EasyManua.ls Logo

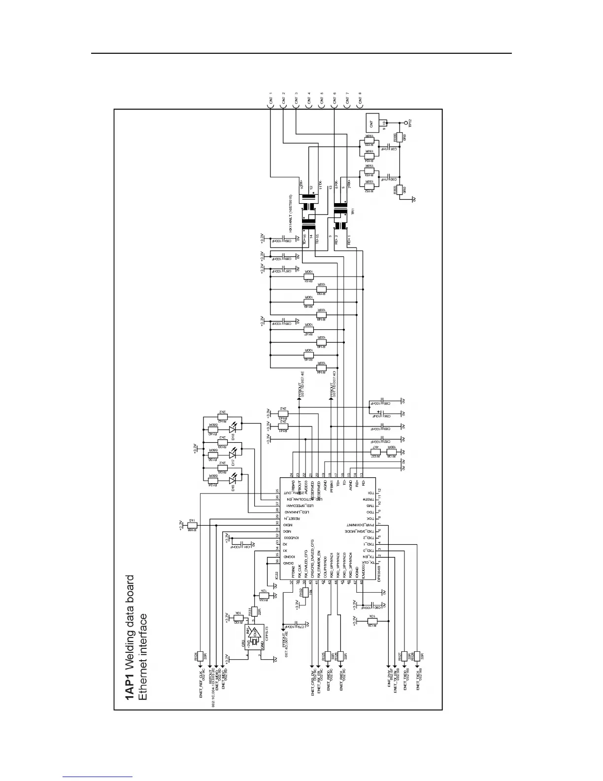
ESAB A2-A6 PEK - 1 AP1:6 Ethernet Interface, from Serial No. 628-XXX-XXXX

ESAB A2-A6 PEK
64 pages
Print Icon
To Next Page IconTo Next Page
To Next Page IconTo Next Page
To Previous Page IconTo Previous Page
To Previous Page IconTo Previous Page
Loading...
DESCRIPTION OF OPERATION
0740 801 028
- 30 -
© ESAB AB 2017
1AP1:6 Ethernet interface, from serial no. 628-xxx-xxxx
Circuit diagram for Ethernet interface

Related product manuals