EasyManua.ls Logo

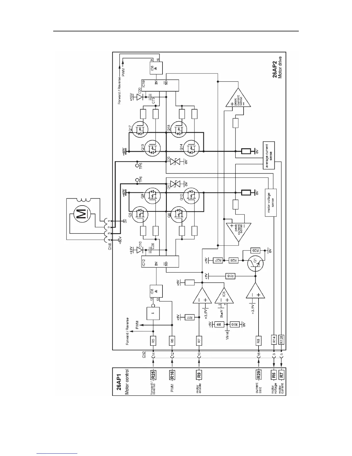
ESAB A2-A6 PEK - 26 AP2:3 Motor 2 Drive (Travel Motion at CN6)

ESAB A2-A6 PEK
64 pages
Print Icon
To Next Page IconTo Next Page
To Next Page IconTo Next Page
To Previous Page IconTo Previous Page
To Previous Page IconTo Previous Page
Loading...
DESCRIPTION OF OPERATION
0740 801 028
- 43 -
© ESAB AB 2017
26AP2:3 Motor 2 drive (Travel motion at CN6)

Related product manuals