EasyManua.ls Logo

ESAB A2-A6 PEK - 26 AP2:4 Relay Outputs

ESAB A2-A6 PEK
64 pages
Print Icon
To Next Page IconTo Next Page
To Next Page IconTo Next Page
To Previous Page IconTo Previous Page
To Previous Page IconTo Previous Page
Loading...
DESCRIPTION OF OPERATION
0740 801 028
- 44 -
© ESAB AB 2017
To run the motor the following requirements must be fulfilled:
A PWM signal must be present at terminal CN2:12.
The motor enable signal at CN2:10 must be low.
A direction signal must be present at terminal CN2:14.
When terminal CN2:14 is high:
Transistors Q6 and Q10 are conducting continously.
Transistors Q13 and Q17 are conducting alternatingly with Q14 and Q18.
The switch frequency is 19.6 kHz, max duty cycle is 98%.
When terminal CN2:14 is low:
Transistors Q14 and Q18 are conducting continously.
Transistors Q5 and Q9 are conducting alternatingly with Q6 and Q10.
The switch frequency is 19.6 kHz, max duty cycle is 98%.
Other information:
The BusV signal at IC5:4 turns off the motor in case of overvoltage at the +60 V bus.
Voltages above 85 V are defined as overvoltage.
Terminal CN2:16 is always high this means that the current limit is low = 1 A.
High signal level as mentioned above is about +5 V.
Low signal level as mentioned above is about 0 V.
All control signals comes from the processor on the motor control board, 26AP1.
The signal at terminal CN2:3, motor current, is used only for troubleshooting
purposes in this application. The relationship between the signal and the motors
voltage is: Umeas = 2.5 + (0,04 * Umotor) eg: 30 V = 3.7 V, 0 V = 2.5 V, -30 V = 1.3 V
measured between CN2:3 and CN2:7-8
The signal at terminal CN2:5, motor current, is used only for troubleshooting
purposes in this application. The relationship between the signal and the motors
voltage is: Umeas = 2.5 + (0,241 * Imotor) eg: 1.3 V = -5 A, 2.5 V = 0 A, 3.7 V = 5 A
measured between CN2:5 and CN2:7-8
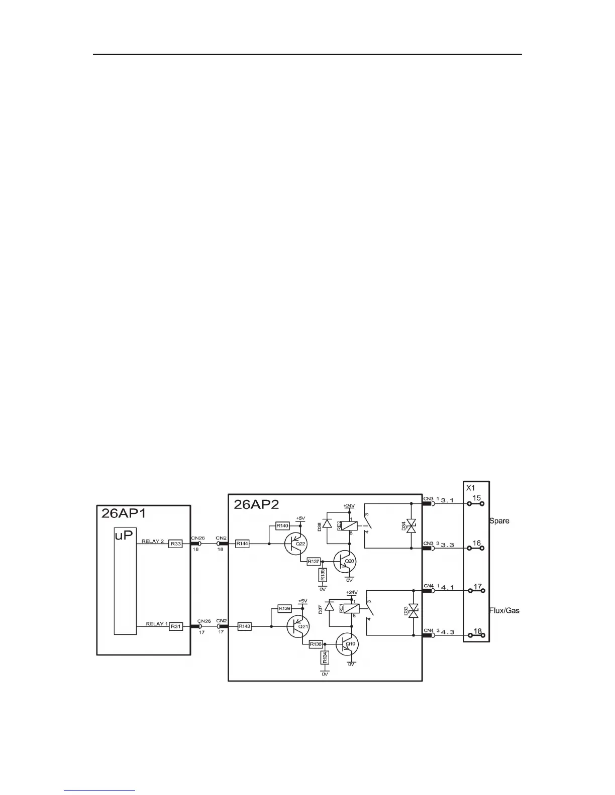
26AP2:4 Relay outputs
The relay outputs for external equipment are controlled by software. The outputs from the
processor on 26AP1 are connected to driver circuits on 26AP2.
The control signal is amplified by two transistors connected to a relay. The outputs of the
relays are galvanic separated from the electronics and available at X1:15/16 and X1:17/18.

Related product manuals