EasyManua.ls Logo

ESAB A2-A6 PEK - 26 AP2 Motor Drive; 26 AP2:1 Power Supply

ESAB A2-A6 PEK
64 pages
Print Icon
To Next Page IconTo Next Page
To Next Page IconTo Next Page
To Previous Page IconTo Previous Page
To Previous Page IconTo Previous Page
Loading...
DESCRIPTION OF OPERATION
0740 801 028
- 40 -
© ESAB AB 2017
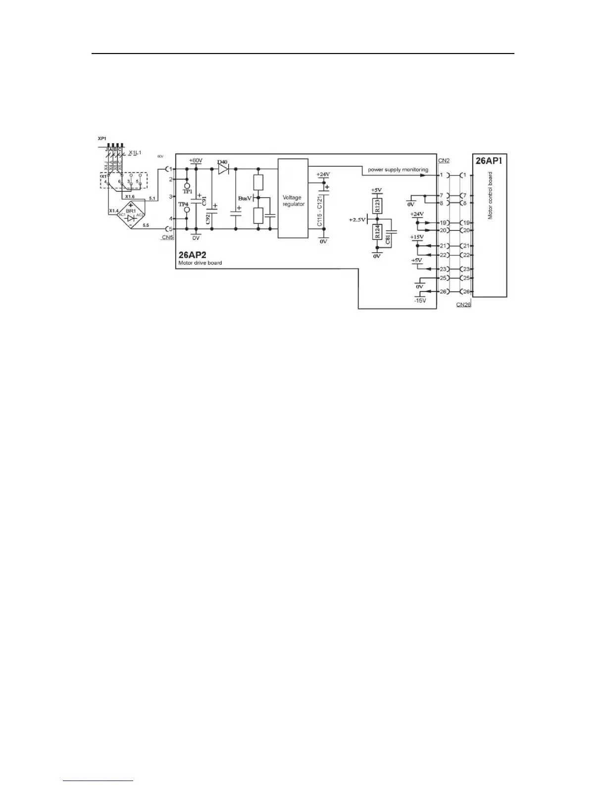
26AP2 Motor drive
The motor drive board comprises power components the motor drive. Control signals are
supplied by the processor on the control board, 26AP1.
26AP2:1 Power supply
The motor drive board is supplied with power from the welding power source. The 42 VAC is
rectified by BR1 and supplied to CN5:1 and CN5:5.
On the board it generates a 24V ±1 V and this voltage is used internally on the board and is
also supplied to 26AP1.
The motor control board, 26AP1, supplies +15 V, -15 V and +5 V to the motor drive board,
26AP2.

Related product manuals