EasyManua.ls Logo

Faraday MPC-1500 Plus - Page 49

Faraday MPC-1500 Plus
127 pages
Print Icon
To Next Page IconTo Next Page
To Next Page IconTo Next Page
To Previous Page IconTo Previous Page
To Previous Page IconTo Previous Page
Loading...
12530/12540 OWNER'S MANUAL
P/N 447203 Issue I V-10
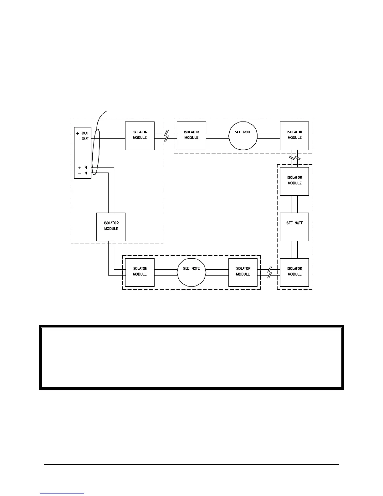
Style 7 may be used where it is required that a single break or short in the circuit does not cause any
modules to stop functioning.
ADDRESSABLE DEVICE CIRCUIT
WIRING / OPERATION COMPARABLE TO NFPA STYLE “7”
Note:
Faraday Addressable Devices:
Not applicable to Style 7 wiring.
System Sensor Addressable Devices:
Sensors, Monitor Modules, or Control Modules up to a maximum of 99 Sensors and 99 Modules
per addressable device circuit. Maximum of 1 device between Isolator Modules. When using the
9298 or 9299 Isolator Base, it will be wired in place of a 9160 and the addressable sensor shown
in the wiring above (one 9160 Isolator is required per sensor with an isolator base).
EACH CIRCUIT
MUST HAVE TWO
ASSOCIATED
ISOLATOR
MODULES WITH
WIRING
ENCLOSED IN
CLOSED NIPPLED
CONDUIT.
EACH DEVICE MUST HAVE
TWO ASSOCIATED
ISOLATOR MODULES WITH
WIRING ENCLOSED IN
CLOSED NIPPLED CONDUIT.
SUPERVISED,
POWER LIMITED
EACH DEVICE MUST HAVE
TWO ASSOCIATED
ISOLATOR MODULES WITH
WIRING ENCLOSED IN
CLOSED NIPPLED CONDUIT.
EACH DEVICE MUST HAVE
TWO ASSOCIATED
ISOLATOR MODULES WITH
WIRING ENCLOSED IN
CLOSED NIPPLED CONDUIT.

Table of Contents