EasyManua.ls Logo

Ferroli TOR - Γενικό Σχέδιο Συναρμολόγησης Και Κύρια Εξαρτήματα

Ferroli TOR
184 pages
Print Icon
To Next Page IconTo Next Page
To Next Page IconTo Next Page
To Previous Page IconTo Previous Page
To Previous Page IconTo Previous Page
Loading...
TOR
cod. 3542B750 - Rev 05 - 07/2022
150
EL
4.2 
1
3
56
4
2
36
5
6
74
340
10
114
32
145
14
36
11

1
3
56
4
36
5
6
10
114
32
145
14
36
11
2
74
340


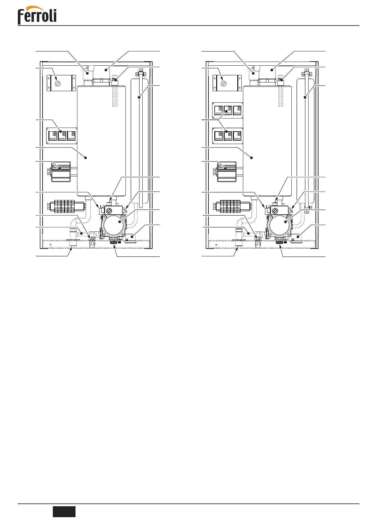
1 Θερμαντικάστοιχεία
2 Θερμοστάτηςασφαλείας(χειροκίνητη
επαναφορά)
3 Αισθητήραςθερμοκρασίαςθέρμανσης
4 Ρελέστερεάςκατάστασης
5 Εσωτερικόδοχείο
6 Ασφαλειοδιακόπτης
10 Έξοδοςροήςκεντρικήςθέρμανσης
11 Είσοδοςεπιστροφήςκεντρικήςθέρμανσης
14 Βαλβίδαασφαλείαςκεντρικήςθέρμανσης
32 Αντλίακεντρικήςθέρμανσης
36 Αυτόματηεξαέρωση
56 Δοχείοδιαστολής
74 Στρόφιγγαπλήρωσης
114 Διακόπτηςπίεσηςνερού
145 Μετρητήςπίεσηςκεντρικήςθέρμανσης
340 Παράκαμψη

Table of Contents

Related product manuals