EasyManua.ls Logo

Ferroli TOR - Disegno Dinsieme Generale E Componenti Principali

Ferroli TOR
184 pages
Print Icon
To Next Page IconTo Next Page
To Next Page IconTo Next Page
To Previous Page IconTo Previous Page
To Previous Page IconTo Previous Page
Loading...
TOR
cod. 3542B750 - Rev 05 - 07/2022
176
IT
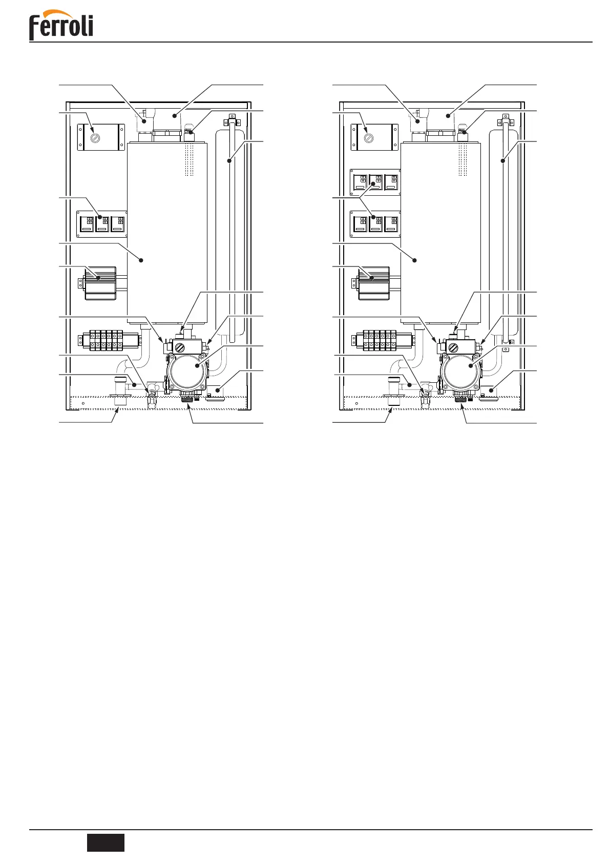
4.2 DISEGNO D’INSIEME GENERALE E COMPONENTI PRINCIPALI
1
3
56
4
2
36
5
6
74
340
10
114
32
145
14
36
11
g. 13 - 6 ÷ 12 kW
1
3
56
4
36
5
6
10
114
32
145
14
36
11
2
74
340
g. 14 - 18 ÷ 24 kW
Legenda
1 Elementi riscaldanti
2 Termostato di sicurezza (reset manuale)
3 Sensore temperatura riscaldamento
4 Relè a stato solido
5 Bollitore interno
6 Interruttore
10 Uscita mandata riscaldamento centrale
11 Ingresso ritorno riscaldamento centrale
14 Valvola di sicurezza riscaldamento centrale
32 Pompa riscaldamento centrale
36 Sato aria automatico
56 Vaso di espansione
74 Rubinetto di riempimento
114 Interruttore pressione acqua
145 Manometro riscaldamento centrale
340 Bypass

Table of Contents

Related product manuals