EasyManua.ls Logo

Ferroli TOR - Desen De Ansamblu ŞI Componente Principale Ale Centralei

Ferroli TOR
184 pages
Print Icon
To Next Page IconTo Next Page
To Next Page IconTo Next Page
To Previous Page IconTo Previous Page
To Previous Page IconTo Previous Page
Loading...
TOR
cod. 3542B750 - Rev 05 - 07/2022
46
RO
20
TOR
TOR
cod. 3542B750 - Rev 00 - 05/2022
20
EN
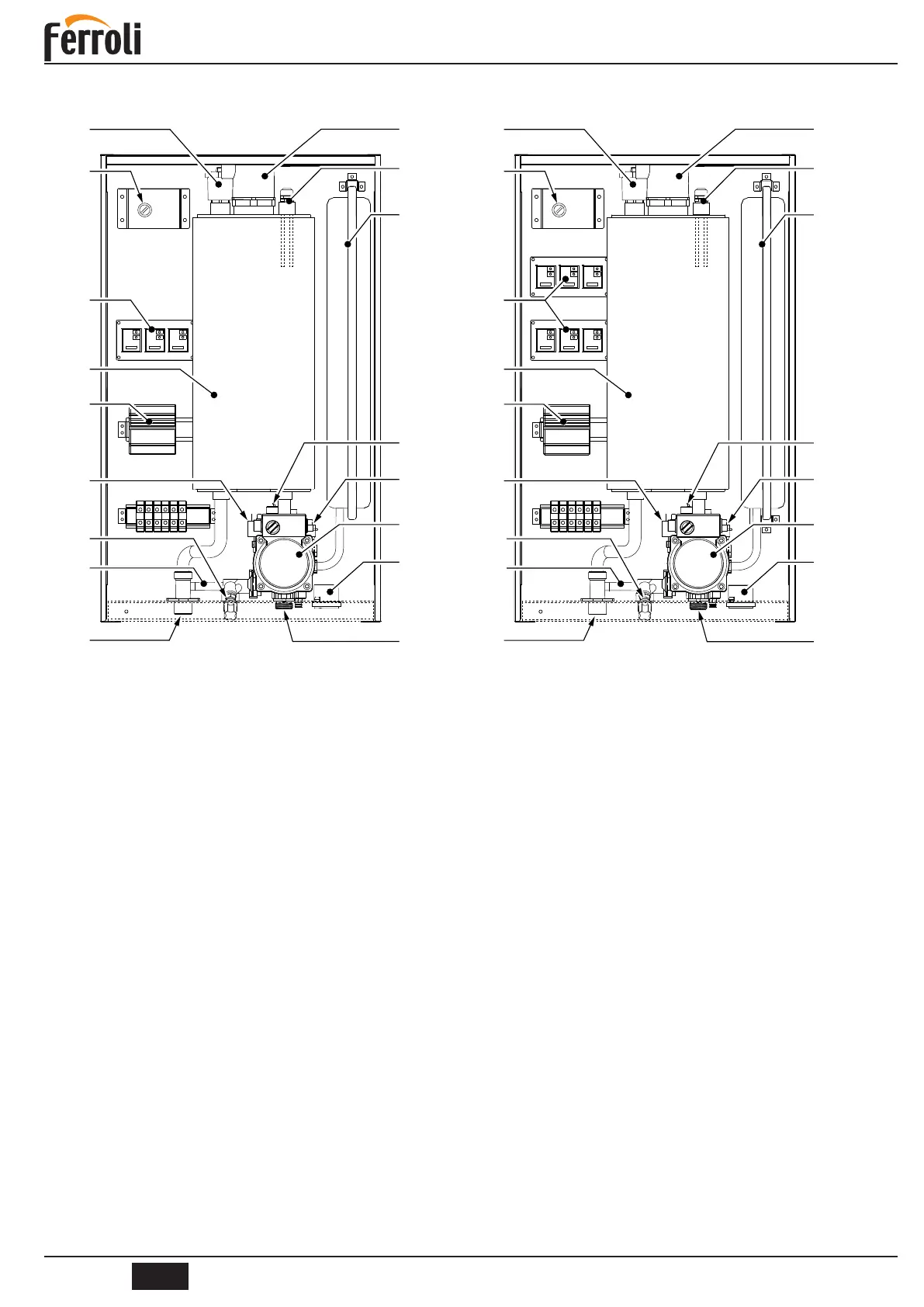
4.2 GENERAL ASSEMBLY DRAWING AND MAIN PART
1
3
56
4
2
36
5
6
74
340
10
114
32
145
14
36
11
g. 14 6 ÷ 12 kW
1
3
56
4
36
5
6
10
114
32
145
14
36
11
2
74
340
g. 15 18 ÷ 24 kW
Key
1 Heating elements
2 Safety thermostat (manual reset)
3 Heating temperature sensor
4 Solid-state relay
5 Inner tank
6 Circuit breaker
10 Central heating ow outlet
11 Central heating return inlet
14 Central heating safety valve
32 Central heating pump
36 Automatic air vent
56 Expansion vessel
74 Filling cock
114 Water pressure switch
145 Central heating pressure gauge
340 Bypass
4.2. Desen de ansamblu şi componente principale ale centralei
Legendă
1 Elementeincalzire
2 Termostatdesiguranta(resetaremanuala)
3 Senzordetemperatura
4 Relee
5 Schimbatordecaldura
6 Sigurantaautomata
10 Turinstalatieincalzire
11 Returinstalatieincalzire
14 Supapadesigurantainstalatieincalzire
32 Pompacirculatieincalzire
36 Aerisitorautomat
56 Vasdeexpansiune
74 RobinetUmplere
114 Presostatdeapa
145 Manometru
340 Bypass
4.2 DESENDEANSAMBLUŞICOMPONENTEPRIN-
CIPALEALECENTRALEI
- -

Table of Contents

Related product manuals