EasyManua.ls Logo

FireClass FC503 - Terminal Descriptions; FC503 Terminal Layout; FC506 Terminal Layout; Telephone Line Terminals

FireClass FC503
72 pages
Print Icon
To Next Page IconTo Next Page
To Next Page IconTo Next Page
To Previous Page IconTo Previous Page
To Previous Page IconTo Previous Page
Loading...
24
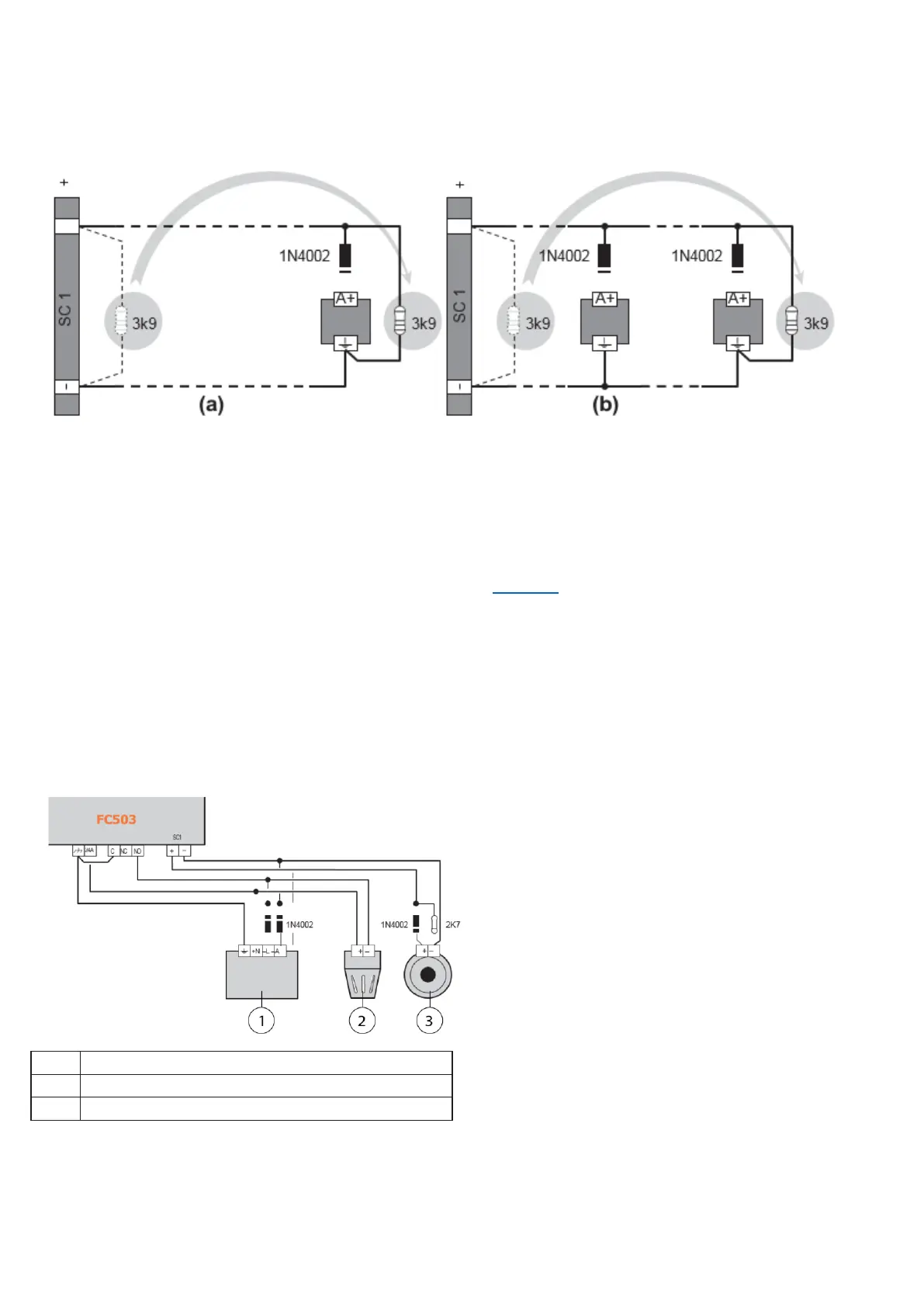
Figure 11: Wiring diagram of the connection of a single device
(a) Connecting to several devices
(b) Connecting to bell outputs (device activated by positive (27.6 V) on terminal [A+])
Connecting output devices
The control panel has non supervised outputs and two bell
outputs.
Connect output devices to the loops using output modules.
Bell outputs
The bell outputs are indicated by the letter SC and their
address number.
The SC1 and SC2 bell outputs are supervised,
silenceable, and bypassable or disabled. SC2 is also
programmable.
Figure 12: Wiring diagram: Non-silenceable and
silenceable output connections
Force the bell outputs to standby using the SILENCE
button. Once a user acknowledges an alarm, you can
silence the audible signaling devices and leave the visual
signaling devices active until alarm conditions cease.
For example, a connection similar to the wiring diagram in
Figure 12 activates the flasher, the bell and the visual and
audible signaling device of the self-powered siren in alarm
conditions.
Using the SILENCE button stops the horn, but not the
flasher, which continues to signal alarm status until you
press the RESET button.
1
Self-powered siren CALL-R24
2
Flasher
3
Bel

Table of Contents

Other manuals for FireClass FC503

Related product manuals