EasyManua.ls Logo

Frick RXB PLUS - Page 60

Frick RXB PLUS
66 pages
Print Icon
To Next Page IconTo Next Page
To Next Page IconTo Next Page
To Previous Page IconTo Previous Page
To Previous Page IconTo Previous Page
Loading...
RXB PLUS ROTARY SCREW COMPRESSOR UNITSS70-101 IOM
Page 60
MAINTENANCE
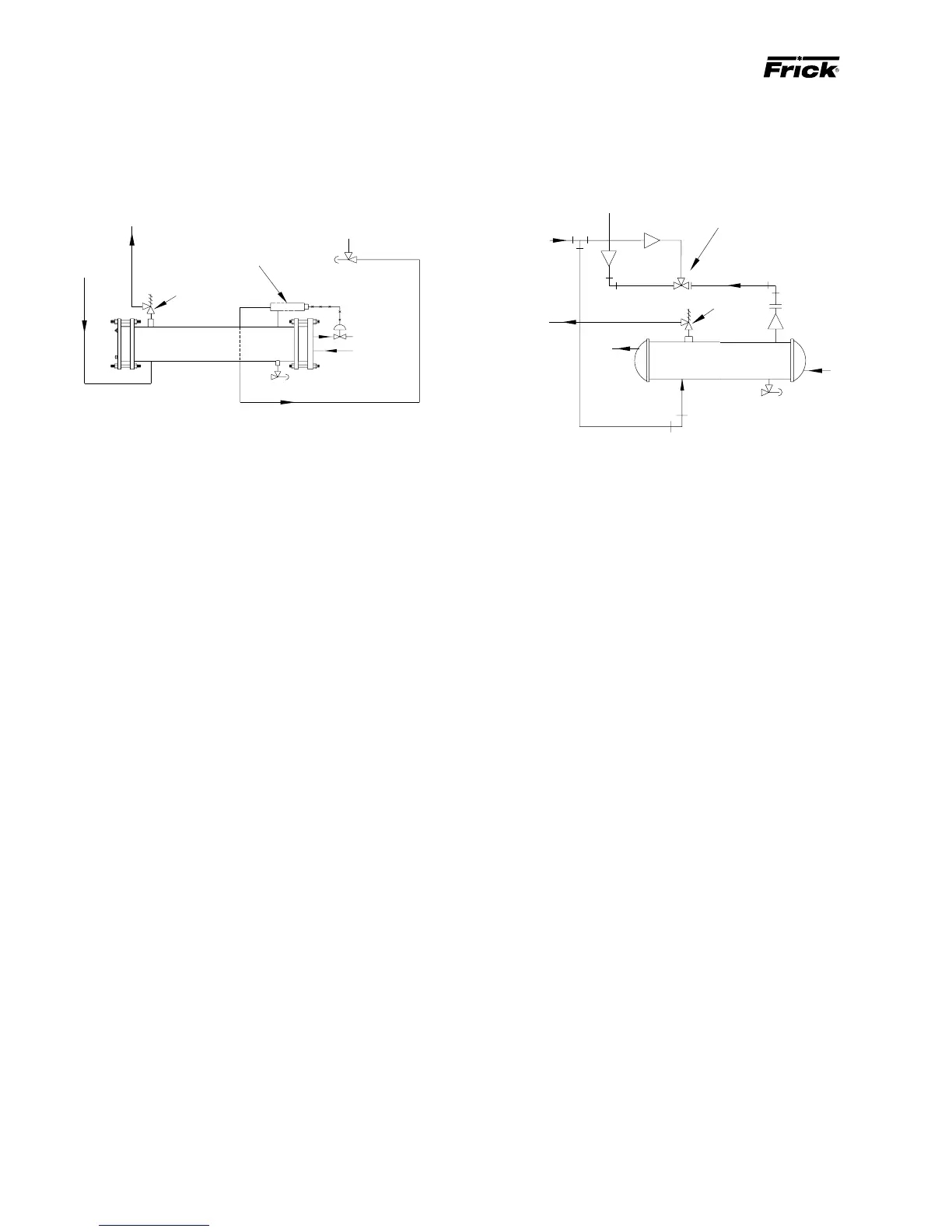
P & I DIAGRAM, All Models
WCOC
FROM OIL
SEPARATOR
TO OIL
SEPARATOR
TO OIL FILTER
WATER REGULATING VALVE
OIL
RELIEF
VALVE
(OPTIONAL)
RXBWCOC
3
FROM OIL
SEPARATOR
TO OIL
SEPARATOR
A
B
C
3
1" AMOT VALVE (REMOVE TEMP.
ELEMENT BEFORE WELDING, REINSTALL
ELEMENT W/SENSING BULB IN "A" PORT)
TSOC
RXBTSOC
OIL
RELIEF
VALVE
(OPTIONAL)
WATER-COOLED OIL COOLER THERMOSYPHON OIL COOLER

Table of Contents

Related product manuals