EasyManua.ls Logo

Fuji Electric frenic mini series - Page 176

Fuji Electric frenic mini series
306 pages
To Next Page IconTo Next Page
To Next Page IconTo Next Page
To Previous Page IconTo Previous Page
To Previous Page IconTo Previous Page
Loading...
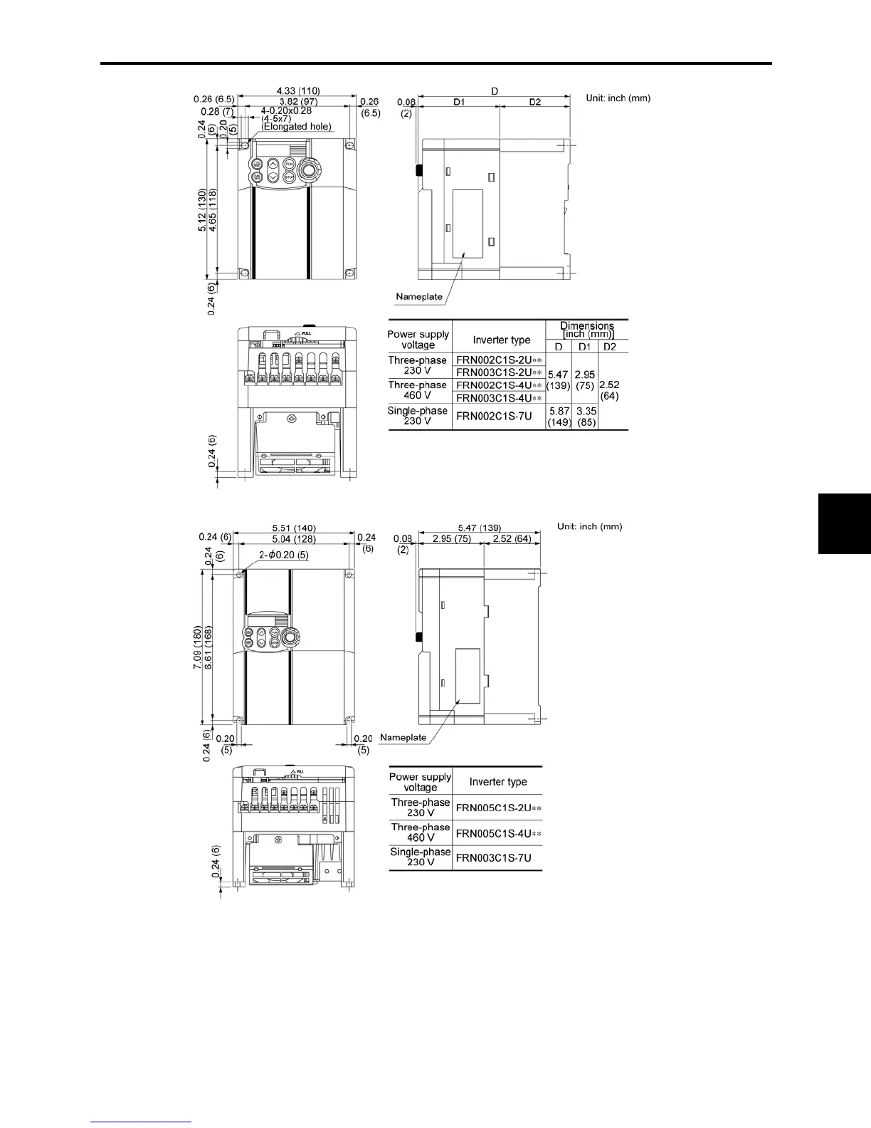
8.6 External Dimensions
8-29
Chap. 8 SPECIFICATIONS
Note 1) Asterisks () in the above table replace numbers which denote the following:
21: Braking resistor built-in type, None: Standard.

Table of Contents

Other manuals for Fuji Electric frenic mini series

Related product manuals