EasyManua.ls Logo

Fuji Electric frenic mini series - Page 209

Fuji Electric frenic mini series
306 pages
To Next Page IconTo Next Page
To Next Page IconTo Next Page
To Previous Page IconTo Previous Page
To Previous Page IconTo Previous Page
Loading...
9-24
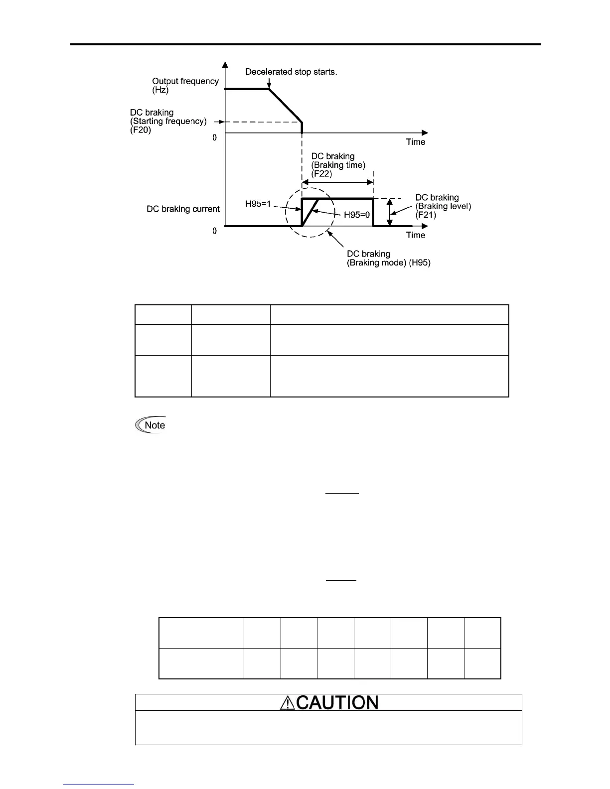
H95 specifies the DC braking mode as follows:
Data for H95 Braking mode Meaning
0 Slow response
The DC braking current gradually ramps up. (The torque
may not be sufficient at the start of DC braking.)
1 Quick response
The DC braking current quickly ramps up. (Depending
on the inertia of the moving loads or the coupling state,
the revolution may be unstable.)
For three-phase 230 V and single-phase 230 V inverters
The braking level setting for the three-phase 230 V and single-phase 230 V series
should be calculated from the DC braking level I
DB (A) based on the reference current
I
ref (A), as shown below.
100
(A)I
(A)I
=(%)Setting
ref
DB
u
(Example) Setting the braking level I
DB at 4.2 Amp (A) for 1 HP (0.75 kW) standard
motors
84100
(A)5.0
(A)4.2
=(%)Setting u
Applicable motor
rating [HP (kW)]
1/8
(0.1)
1/4
(0.2)
1/2
(0.4)
1
(0.75)
2
(1.5)
3
(2.2)
5
(3.7)
Reference
current Iref (A)
0.8 1.5 3.0 5.0 8.0 11.0 17.0
The brake function of the inverter does not provide mechanical holding means.
Injuries could occur.

Table of Contents

Other manuals for Fuji Electric frenic mini series

Related product manuals