EasyManua.ls Logo

GE M60 - Page 59

GE M60
676 pages
Print Icon
To Next Page IconTo Next Page
To Next Page IconTo Next Page
To Previous Page IconTo Previous Page
To Previous Page IconTo Previous Page
Loading...
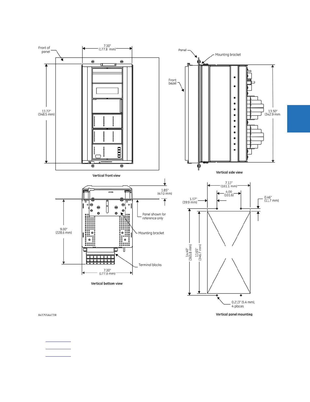
CHAPTER 3: INSTALLATION PANEL CUTOUTS
M60 MOTOR PROTECTION SYSTEM – INSTRUCTION MANUAL 3-7
3
Figure 3-6: Vertical and mounting dimensions (standard front panel)
For side-mounting M60 devices with the enhanced front panel, see the following documents available on the UR DVD and
the GE Grid Solutions website:
GEK-113180
— UR-Series UR-V Side-Mounting Front Panel Assembly Instructions
GEK-113181
— Connecting a Remote UR-V Enhanced Front Panel to a Vertical UR Device Instruction Sheet
GEK-113182
— Connecting a Remote UR-V Enhanced Front Panel to a Vertically-Mounted Horizontal UR Device
Instruction Sheet

Table of Contents

Related product manuals