EasyManua.ls Logo

Gree GMV-S280W/A-X

Gree GMV-S280W/A-X
391 pages
To Next Page IconTo Next Page
To Next Page IconTo Next Page
To Previous Page IconTo Previous Page
To Previous Page IconTo Previous Page
Loading...
GMV5 Home DC Inverter Multi VRF Units
127
3.3.2.7 Power cable
Only copper conductors can be used as power cables. The copper conductors must meet
relevant national standard and satisfy the carrying capacity of unit.
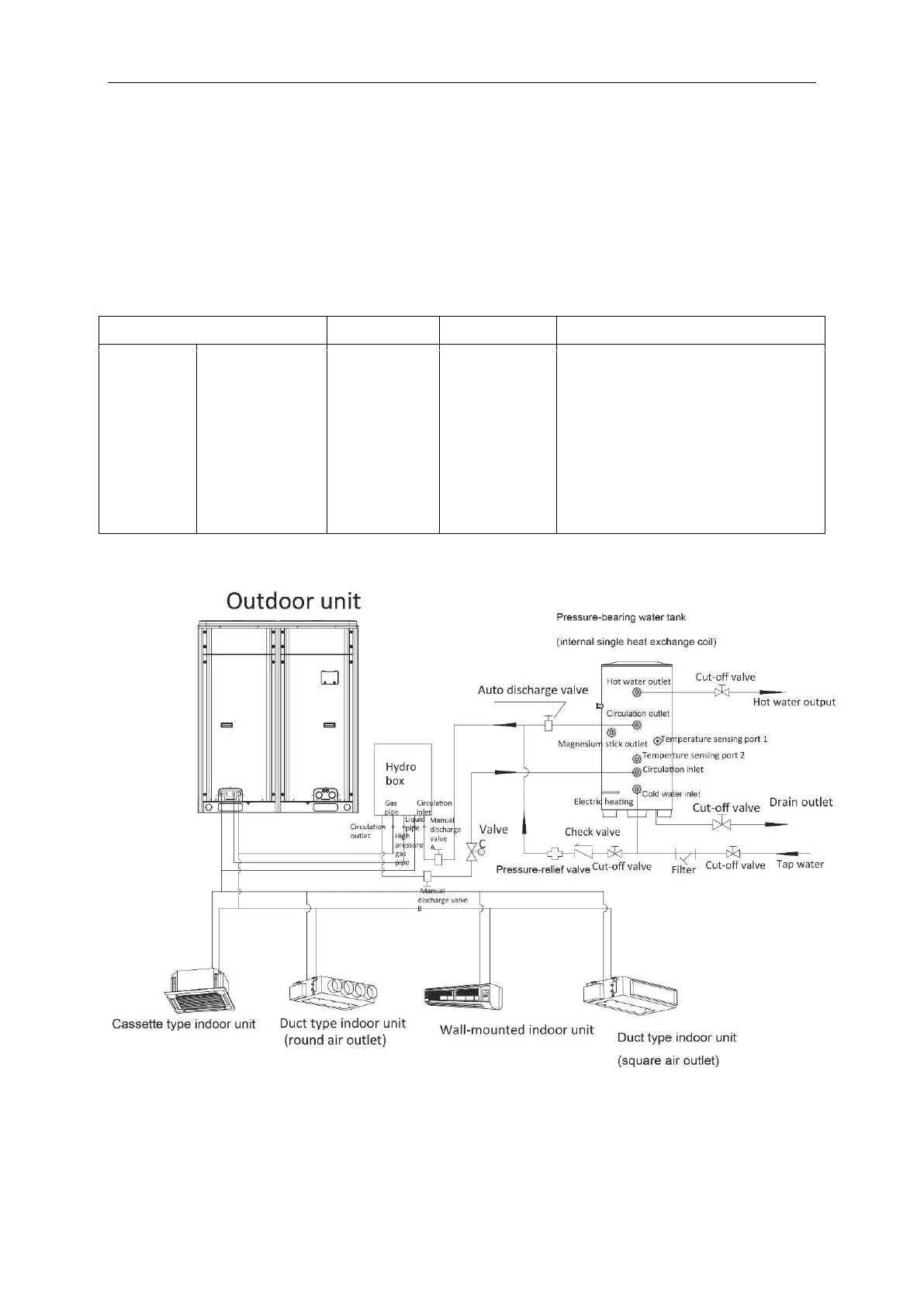
4 Three Operation Modes
4.1 Operation mode 1: Air conditioning + water heating
This solution can satisfy large demand for hot water. It is applicable for 4 or more persons or
bathing:
Outdoor model
Indoor unit
Hydro box
Water tank
Top
discharge
GMV-S224W/A-X
GMV-S280W/A-X
Indoor units of
GMV5
NRQD16G/A-S
Water tank with internal coil:
SXVD200LCJ/A-K
SXVD300LCJ/A-K
SXVD350LCJ/A-K
SXVD400LCJ/A-K
(2) Solar power connectable water tank
with internal coil:
SXVD200LCJ2/A-K
SXVD300LCJ2/A-K
SXVD350LCJ2/A-K
SXVD400LCJ2/A-K
Installation method:

Table of Contents

Related product manuals