EasyManua.ls Logo

Gree GMV-S280W/A-X

Gree GMV-S280W/A-X
391 pages
To Next Page IconTo Next Page
To Next Page IconTo Next Page
To Previous Page IconTo Previous Page
To Previous Page IconTo Previous Page
Loading...
GMV5 Home DC Inverter Multi VRF Units
190
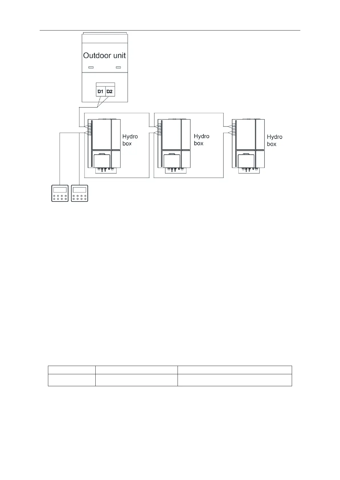
Two wired controllers control multiple hydro boxes
Wiring instructions:
(1) When one wired controller controls several hydro boxes , the wired controller can
connect to any one of the hydro boxes , but the devices connected to wired controller
must be either hydro boxes . Up to 3 hydro boxes are connectable and the connected
hydro boxes must be in a same network.
(2) When two wired controllers control one hydro box at the same time, the wired controllers
must have different addresses.
(3) When two wired controllers control several hydro boxes , the wired controller can connect
to any one of the hydro box, but the devices connected to wire controller must be either
hydro boxes . Addresses of wired controllers must be different from each other. Up to 3
hydro boxes are connectable and the connected hydro boxes must be in a same
network.
(4) When one (or two) wired controller controls several or hydro boxes, the controlled hydro
box must have the same setting.
(5) Communication network between wired controller and hydro box must be connected
according to one of the 4 connection methods stated above. If the connection includes
two wired controllers, only one can be set as a master controller (addr 01) while the other
as slave wired controller (addr 02). Only two wired controllers can be connected at most.
12.3.4 Connection between the duct type IDU and receiver board
When the duct type IDU needs to be connected to the remote-control receiver board, connect
via Dsp1 and Dsp2 on the main board of the IDU:
Type of ndoor unit
Connection wire
Corresponding interface on mainboard
Duct type
Inter-board connection (17 cores)
Dsp1 (interconnecting with the 8-core interface)
Dsp2 (interconnecting with the 9-core interface)

Table of Contents

Related product manuals